立交隧道下穿段施工方案(左右线分修)(工艺流程图)

附件详情

  • 第一章 编制依据及编制范围
  • 1.1 编制依据
  • 1.2 编制范围
  • 第二章 项目概要
  • 2.1 B隧道概况
  • 2.2 A隧道概况
  • 2.3 立交关系概述
  • 2.4 交叉影响段A隧道工程地质概况
  • 第三章 施工组织安排
  • 3.1 施工准备
  • 3.2 施工队伍安排及劳动力部署
  • 3.3 施工工期计划
  • 第四章 施工方案
  • 4.1 总体方案概述
  • 4.2 既有隧道调查
  • 4.3 超前地质预报
  • 4.4超前支护施作
  • 4.5 控制爆破开挖
  • 4.6 注浆堵水
  • 4.7 初期支护及衬砌类型
  • 第五章 监控量测
  • 5.1B隧道监控量测
  • 5.2A隧道监测
  • 5.3监控量测评价
  • 5.4与产权单位的沟通
  • 第六章 施工工艺
  • 6.1 超前地质预报
  • 6.2 控制爆破开挖
  • 6.3 超前大管棚施工
  • 6.4 初期支护
  • 6.5 二次衬砌
  • 第七章 施工安全保证措施
  • 7.1控制爆破安全措施
  • 7.2 既有线安全措施
  • 7.3 A隧道交叉影响段施工安全措施
  • 第八章 应急预案
  • 8.1编制目的
  • 8.2 组织结构及职责
  • 8.3 预防与预警
  • 8.4 重大危险源及应急预案
  • 8.5信息报告程序
  • 8.6 应急物资与装备
  • 8.7应急抢险组织保障

附件详情

【项目概要】
A隧道:双线单洞隧道(新建隧道)隧道最大埋深约265m,下穿B隧道段埋深约215m。
B隧道:单向双洞汽车专用隧道(原有隧道)隧道最大埋深约232m,立交段隧道埋深约190m。
【内容节选】
施工步骤:
第一步:完成既有XX左右线隧道交叉影响段调查,若存在空洞、空隙、裂隙、衬砌厚度及配筋与设计不符等情况,则对既有XX左右隧道进行加固。
第二步:完成既有XX左右线隧道加固措施,并通过验收。
第三步:与市政管理委员会联系,签订施工安全协议。
第四步:立交影响段超前支护施工:ф108管棚及ф42小导管。
第五步:控制爆破开挖XX左右线隧道下穿XX隧道交叉影响段。
第六步:初期支护及二次衬砌紧跟施作。
……
采用台阶法钻爆开挖,拱部采用光面爆破,边墙采用预裂爆破,核心采用控制爆破,掏槽采用抛掷爆破的综合控制爆破技术,以尽可能减轻对围岩的扰动,维护围岩的整体性,达到良好的轮廓成形,严格控制装药量,采用凿岩台架和风动凿岩机钻眼,非电毫秒雷管微差起爆。
……
交叉影响段XX左右线隧道施工期间,采用超前钻孔探测,并辅以地质雷达及红外探水探明掌子面前方地质情况。
隧道钻爆采用人工风枪打眼: 测量、布孔、打眼、移位。光爆钻孔时,由爆破 技术员 统一指挥协调行动,认真实行定人、定位、定机、定质、定量的“五定”岗位责任制;分区按顺序钻孔,避免相互干扰、碰撞、拥挤;固定钻孔班,以便熟练技术,掌握规律,提高钻孔的速度和准确性。
……
内附图表:
A隧道与B隧道平面关系图
A左线隧道与B隧道立交关系图
A右线隧道下穿B隧道立交关系图
A左线隧道下穿B隧道纵断面关系图
A右线隧道下穿B隧道纵断面关系图
组织机构图
大管棚工作室横断面图
大管棚工作室纵面图
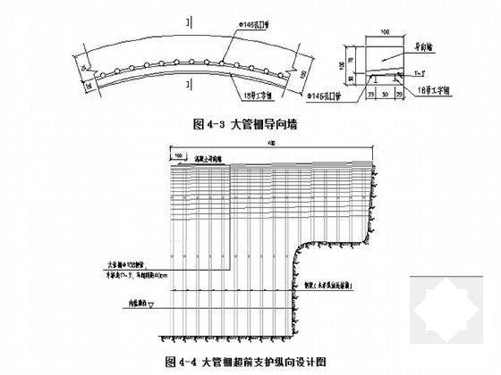
大管棚导向墙
大管棚超前支护纵向设计图
大管棚注浆孔及内置钢筋笼设计图
台阶法 施工工艺 流程图
台阶法施工工序示意图
上台阶毫秒雷管分布图
下台阶毫秒雷管分布图
隧道立交段IV级II型加强衬砌
隧道立交段V级II型加强衬砌
既有隧道衬砌震速测点布置
既有隧道沉降及净空收敛测点布置
隧道拱顶下沉及净空收敛测点布置断面
施工安全评价流程图
超前大管棚 施工工艺 框图
初期支护施工工艺流程图
锚杆施工工艺流程图
钢架施工工艺流程图
喷射混凝土施工工艺框图
衬砌施工工艺流程图
信息传递流程
……
共计54页(20)

A左线隧道与B隧道立交关系图

A左线隧道下穿B隧道纵断面关系图

大管棚工作室横断面图

大管棚超前支护纵向设计图

台阶法施工工序示意图

毫秒雷管分布图

隧道立交段IV级II型加强衬砌

既有隧道衬砌震速测点布置

既有隧道沉降及净空收敛测点布置

拱顶下沉及净空收敛测点

以下是附件的其中一部分截图,共6张,您也可以 搜索 更多您想要的资源
  • 立交隧道下穿段施工方案(左右线分修)(工艺流程图) - 1
    第 1 张图
  • 立交隧道下穿段施工方案(左右线分修)(工艺流程图) - 2
    第 2 张图
  • 立交隧道下穿段施工方案(左右线分修)(工艺流程图) - 3
    第 3 张图
  • 立交隧道下穿段施工方案(左右线分修)(工艺流程图) - 4
    第 4 张图
  • 立交隧道下穿段施工方案(左右线分修)(工艺流程图) - 5
    第 5 张图
  • 立交隧道下穿段施工方案(左右线分修)(工艺流程图) - 6
    第 6 张图
以上是部分截图,请下载附件后查看完整高清内容
网站首页  | 
本站所有内容均由网友自主分享,仅供学习和参考,如有侵权内容或者违法行为,请及时联系站长删除。