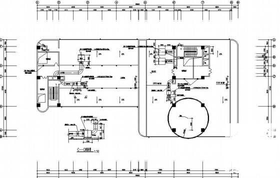
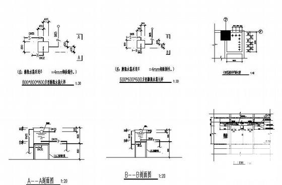
14层医院住院大楼空调通风图纸
- 发布时间:2021-12-01
- 评论次数:0
- 浏览次数:0
- 文件大小:1.49 MB
- 收藏次数:0
- 
								文件名称: 附件-995858775075987997856.rar 附件-995858775075987997856.rar
								空调通风图纸下载
							
						- 12层医院住院大楼空调通风图纸
- 12层医院住院大楼通风空调施工图纸
- 医院住院大楼空调图纸(设计说明).dwg
- 10层医院住院部空调通风图纸
- 医院住院大楼结构图纸
- 10层医院住院大楼中央空调系统及通风排烟设计施工大样图
- 10层医院住院大楼中央空调系统及通风排烟设计CAD施工大样图(人防)
- 8层医院住院门诊综合大楼空调系统设计施工图纸
- 武警医院住院大楼建筑设计CAD图纸
- [大型医院13层住院大楼平面CAD图纸
- 医院住院大楼电气CAD施工图纸
- 综合大楼空调通风图纸
- 8层医院住院楼空调通风系统设计施工图纸
- 7多层医院住院楼空调通风系统设计施工图纸
- 12层医院综合住院楼空调通风设计施工图纸
- 32812平米18层医院住院综合楼通风空调施工图纸
- 玉环县25718平米19层医院住院楼空调通风施工图纸
- 6层卫生中心医院住院楼空调通风系统设计施工图纸
- 5层医院住院楼空调系统及通风防排烟设计施工图纸
- 12层医院综合住院楼空调通风设计CAD施工图纸
全部评论
						
							评论网友评论仅友表达个人看法,并不表明本站同意其观点,不得发布违反法律法规的内容!
						
						
 
	              	 
	              	 
	              	