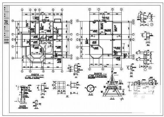
两层混合结构欧式建筑结构全套施工图纸
- 发布时间:2021-11-30
- 评论次数:0
- 浏览次数:0
- 文件大小:2.6 MB
- 收藏次数:0
-
文件名称:
附件-995877597898598785878.rar
建筑结构施工图纸下载
- 两层框架结构私人别墅建筑结构全套施工图纸
- 两层欧式别墅全套建筑结构设计施工图纸
- 两层欧式别墅建筑结构设计CAD图纸
- 两层混合结构仿古建筑结构设计方案CAD图纸
- 2层农村别墅全套施工图纸(混合结构)
- 抄纸车间成浆塔结构大样图
- 中西医地下室纸基础图纸
- 加工车间建筑结构全套施工图纸
- 海两层混合结构基地会所结构施工图纸
- 两层农村自建房混合结构CAD施工方案图纸
- 两层混合结构寺庙展览馆结构CAD施工图纸
- 单层砖木混合结构廊亭建筑结构设计施工图纸
- 临时建筑结构CAD施工图纸(混合结构木屋架)
- 两层框架结构别墅结构水电全套施工图纸
- 两层坡屋顶框架别墅结构设计全套施工图纸
- 混合结构两层带阁楼别墅结构设计施工大样图
- 两层农村自建房混合结构CAD施工图纸(筏形基础)
- 两层带阁楼别墅混合结构设计CAD施工大样图
- 损纸碎浆机池结构详大样图
- 中西医人防地下室纸基础CAD图纸
全部评论
评论网友评论仅友表达个人看法,并不表明本站同意其观点,不得发布违反法律法规的内容!
