单层科研院科技大厦局部结构改造加固设计施工图纸

  • 建筑类别:办公,科研
  • 建筑高度类型:单层建筑
  • 建筑地上层数:1层
  • 图纸设计深度:施工图
  • 民用建筑设计使用年限:50年
  • 建筑设计结构形式:钢筋混凝土结构
  • 钢筋混凝土结构:框架
  • 抗震设防烈度:8度抗震
  • 参考图纸:4张
  • 设计年代:近代

附件详情

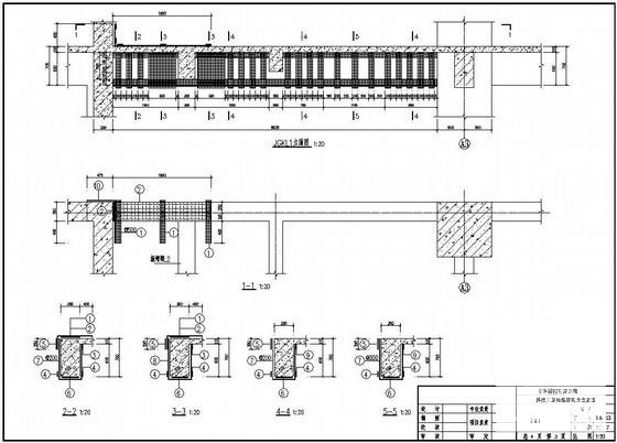
该项目为某科研院有限公司科技大厦局部结构改造加固工程,应建设单位要求对一层结构局部拆除开洞进行钢楼梯安装。对于改造部位周边原结构进行加固。
该资料包含: 结构设计说明 ,局部改造加固平面图,JGL1,JGL2
共4张图纸。

以下是附件的其中一部分截图,共3张,您也可以 搜索 更多您想要的资源
  • 结构改造加固施工图 - 1
    结构改造加固施工图 - 1
  • 结构改造加固施工图 - 2
    结构改造加固施工图 - 2
  • 结构改造加固施工图 - 3
    结构改造加固施工图 - 3
以上是部分截图,请下载附件后查看完整高清内容
网站首页  | 
本站所有内容均由网友自主分享,仅供学习和参考,如有侵权内容或者违法行为,请及时联系站长删除。