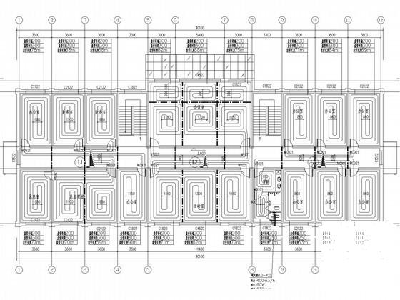
多层办公楼供暖通风系统设计CAD施工图纸(节能设计)
- 发布时间:2023-01-03
- 评论次数:0
- 浏览次数:0
- 文件大小:0.41 MB
- 收藏次数:0
- 
								文件名称: 附件-995858588885550765885.rar 附件-995858588885550765885.rar
								相关下载
							
						- 多层办公楼供暖通风系统设计CAD施工图纸(节能设计)
- 供暖系统节能调控节点详细设计CAD图纸
- 多层科研中心空调通风及防排烟系统设计施工CAD图纸(节能设计)
- 多层餐饮商业中心空调通风系统设计CAD施工图纸(节能设计)
- 生活楼供暖通风系统设计施工图纸
- 多层办公楼空调及通风系统设计2019
- 多层医疗建筑空调通风及防排烟系统设计CAD施工图纸(节能设计)
- 多层幼儿园建筑采暖通风系统设计CAD施工图纸(地板辐射供暖)
- 多层医院空调通风防排烟CAD施工图纸设计(节能设计)
- 高层办公楼采暖通风系统设计CAD施工图纸(高地区散热器供暖)
- 高层办公楼采暖通风系统设计CAD施工图纸(高地区散热器供暖)
- 多层小区室内供暖设计施工图纸.dwg
- 4层幼儿园供暖、通风、防排烟系统设计CAD施工图纸
- 多层行政办公楼空调通风及防排烟系统设计施工图纸
- 2967平米多层办公楼空调通风系统设计施工图纸
- 多层商业办公楼空调及通风系统设计施工图纸
- 多层商业办公楼空调通风防排烟系统设计施工图纸
- 多层科研办公楼空调通风系统设计施工图纸
- 多层办公楼空调通风系统设计施工图纸
- 多层实验办公楼空调通风及防排烟系统设计施工图纸
全部评论
						
							评论网友评论仅友表达个人看法,并不表明本站同意其观点,不得发布违反法律法规的内容!
						
						
 
	              	 
	              	 
	              	