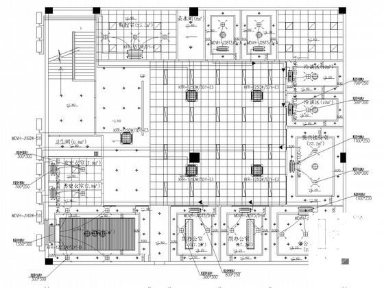
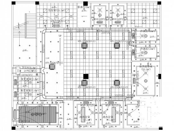
2层商业办公楼多联机空调系统设计CAD施工图纸
- 发布时间:2022-12-30
- 评论次数:0
- 浏览次数:0
- 文件大小:1.22 MB
- 收藏次数:0
-
文件名称:
附件-995858808779855866759.rar
相关下载
- 2层商业办公楼多联机空调系统设计CAD施工图纸
- 剧院多联机空调系统设计
- 多联机空调系统设计施工图纸
- 多联机空调系统设计CAD施工图纸
- 29层商业办公楼多联机空调通风系统设计CAD施工图纸(冷热负荷计算)
- 高层商业办公楼多联机空调通风系统设计CAD施工图纸(冷热负荷计算)
- 4层办公楼变频多联机空调系统设计施工图纸
- 3层办公楼多联机空调系统设计施工图纸
- 11层办公楼多联机空调系统设计CAD施工图纸
- 17层办公楼多联机空调系统设计CAD施工图纸
- 中高层办公楼多联机空调系统设计CAD施工图纸
- 高层办公楼多联机空调系统设计CAD施工大样图
- 办公楼多联机中央空调全套图纸
- 23层办公楼多联机设计图纸(中央空调系统)
- 多联机空调系统分户计量布线CAD图纸
- 3层办公楼多联机空调CAD施工图纸(制冷剂系统)
- 商业办公建筑空调新风系统设计CAD施工图纸(负荷计算多联机系统)
- 商业办公建筑空调新风系统设计CAD施工图纸(负荷计算多联机系统)
- 别墅多联机空调平面CAD图纸
- 厂房多联机全套空调CAD图纸
全部评论
评论网友评论仅友表达个人看法,并不表明本站同意其观点,不得发布违反法律法规的内容!
