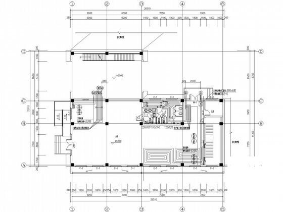
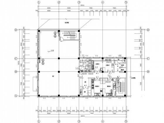
4层小型办公楼采暖通风平面CAD图纸
- 发布时间:2022-12-30
- 评论次数:0
- 浏览次数:0
- 文件大小:0.33 MB
- 收藏次数:0
- 
								文件名称: 附件-995858550765987556688.rar 附件-995858550765987556688.rar
								相关下载
							
						- 住宅分户计量采暖、通风施工cad图纸和采暖平面图,施工说明
- 多层小型办公楼散热器采暖系统设计施工图纸
- 3层办公楼采暖平面图dwg
- 3层小型办公楼空调及通风系统设计施工图纸
- 5层小型商业办公楼空调通风系统设计施工图纸
- 5层小型商业办公楼空调通风系统设计CAD施工图纸
- 小型办公楼空调通风系统设计CAD施工图纸(集中空调)
- 小型多层办公楼空调通风系统初步设计CAD图纸
- 公司办公楼采暖设计cad施工图纸,采暖平面图和采暖系统图
- 小型宾馆酒店采暖通风系统设计CAD施工图纸(卧式暗装风机盘管)
- 3层小型宾馆酒店采暖及通风排烟系统设计CAD施工图纸(给排水设计)
- 3层小型宾馆酒店采暖及通风排烟系统设计CAD施工图纸(给排水设计)
- 小型别墅采暖系统设计施工图纸
- 2层小型住宅电地热采暖设计图纸
- 部队营房小型医院采暖设计cad施工图纸
- 5层小型酒店采暖设计施工CAD图纸
- 4层小型综合商场空调通风系统设计施工图和平面图
- 小型办公楼建筑CAD图纸
- 44750平米地上17层办公楼采暖通风施工图纸
- 办公楼地库采暖通风系统设计施工图纸
全部评论
						
							评论网友评论仅友表达个人看法,并不表明本站同意其观点,不得发布违反法律法规的内容!
						
						
 
	              	 
	              	