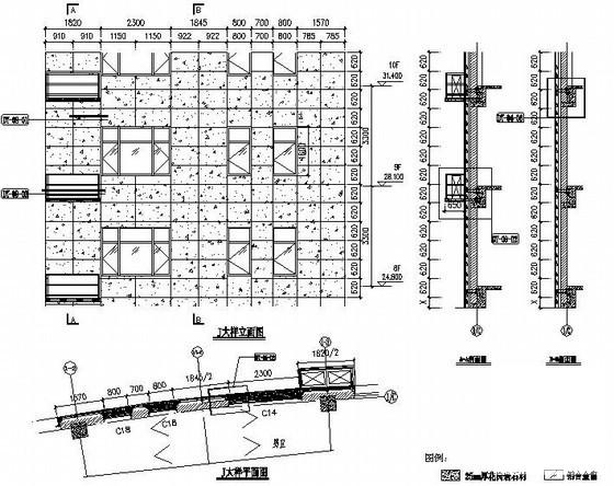
单层铝板办公楼改造外立面幕墙施工大样图
- 发布时间:2021-11-29
- 评论次数:0
- 浏览次数:0
- 文件大小:8.76 MB
- 收藏次数:0
- 
								文件名称: 附件-995877669798866655779.rar 附件-995877669798866655779.rar
								办公楼改造图下载
							
						- 办公楼改造外立面幕墙CAD施工大样图
- 医院综合楼单层铝板幕墙计算书
- 肥西县5层办公楼外立面改造幕墙全套设计施工图纸.dwg
- 地上8层文化广场外立面穿孔铝板及观光电梯玻璃幕墙装饰工程施工大样图
- 8层文化广场外立面穿孔铝板及观光电梯玻璃幕墙装饰工程CAD施工大样图
- 隐框铝板幕墙大样
- 单层铝板电梯井幕墙结构设计施工图纸
- 铝板幕墙安装施工工艺
- 国内工程铝板幕墙施工方案
- 校史馆外立面石材幕墙施工方案大样图
- 多层住宅外立面幕墙施工方案图纸
- 高层公寓外立面幕墙施工方案图纸
- 18层环保大楼幕墙CAD施工大样图(明框玻璃幕墙铝板幕墙)
- 铝板幕墙节点图纸(,21张)
- 铝板幕墙节点详图纸2019
- 铝板幕墙包方柱水平节点
- 铝板幕墙系统标准CAD图纸
- 铝板幕墙节点详细设计CAD图纸
- 铝板幕墙挑檐纵剖节点
- 复合铝板幕墙CAD节点图纸
全部评论
						
							评论网友评论仅友表达个人看法,并不表明本站同意其观点,不得发布违反法律法规的内容!
						
						
 
	              	 
	              	 
	              	