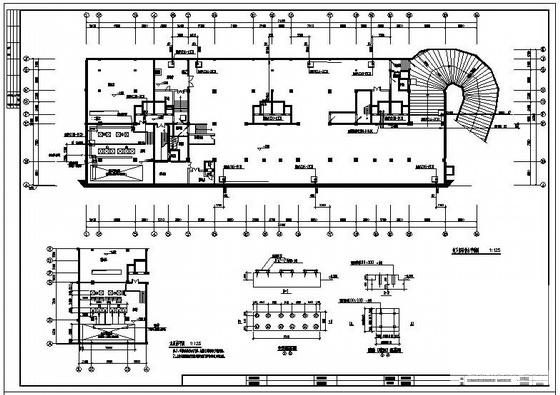
13层大厦给排水施工图纸
- 发布时间:2021-11-29
- 评论次数:0
- 浏览次数:0
- 文件大小:3.56 MB
- 收藏次数:0
- 
								文件名称: 附件-995860588879897555058.rar 附件-995860588879897555058.rar
								相关下载
							
						- 大厦给排水图纸.
- 大厦给排水全套图纸
- 大厦给排水CAD施工图纸
- CAD大厦给排水施工说明
- 24层大厦给排水消防图纸
- 大厦给排水竣工CAD图纸(3)
- 大厦给排水竣工CAD图纸(1)
- 大厦全套给排水竣工CAD图纸
- 大厦全套给排水竣工CAD图纸
- 大厦全套给排水竣工CAD图纸
- 大厦地下车库给排水施工图纸
- 25层大厦给排水施工图纸
- 工业研究大厦给排水消防CAD施工图纸
- 商务大厦给排水CAD施工图纸
- 28层办公大厦给排水CAD施工图纸
- 12层办公大厦给排水CAD施工图纸
- 8层办公大厦给排水CAD施工图纸
- 48层国际大厦给排水CAD施工图纸
- 大厦给排水CAD施工图纸(英文)
- 科技大厦给排水CAD施工方案图纸
全部评论
						
							评论网友评论仅友表达个人看法,并不表明本站同意其观点,不得发布违反法律法规的内容!
						
						
 
	              	 
	              	 
	              	