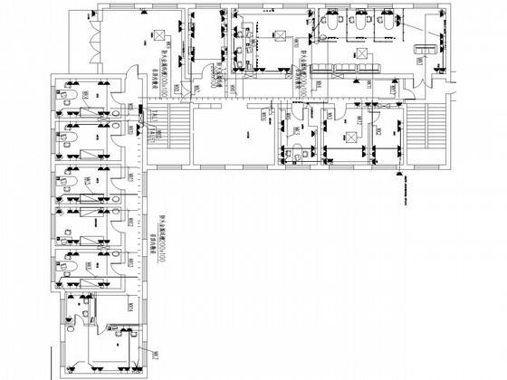
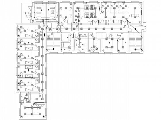
社区卫生3层服务中心电气图纸(三级负荷)
- 发布时间:2022-11-10
- 评论次数:0
- 浏览次数:0
- 文件大小:0.93 MB
- 收藏次数:0
-
文件名称:
附件-995855597868075787677.rar
相关下载
- 3层社区卫生服务中心电气CAD施工图纸
- 4层框架结构社区卫生服务中心结构施工图纸
- 4层框架社区卫生服务中心建筑施工CAD图纸
- 4层中学电气电气CAD施工图纸(三级负荷)
- 国内5层社区卫生服务中心综合楼采暖通风CAD图纸
- 4层框架结构社区卫生服务中心结构CAD施工图纸
- 5层社会福利院电气CAD施工图纸(二级负荷,三级负荷)
- 高层酒店电气设计图纸(二类防雷建筑,二级负荷,三级负荷)
- 两层运动场看台电气施工图纸(三级负荷)
- 两层小区锅炉房电气施工图纸(三级负荷)
- 两层带阁楼别墅电气施工图纸(三级负荷)
- 别墅区会所景观电气施工图纸(三级负荷)
- 5层住宅楼电气施工图纸(三级负荷)
- 5层别墅全套电气施工图纸(三级负荷)
- 188平米热交换站电气施工图纸(三级负荷)
- 6层住宅楼电气施工图纸(三级负荷)
- 锻造厂3层车间电气施工图纸(三级负荷)
- 2层连体别墅电气施工图纸(三级负荷)
- 11层教师公寓电气施工图纸(三级负荷)
- 4层综合楼电气施工图纸(三级负荷)
全部评论
评论网友评论仅友表达个人看法,并不表明本站同意其观点,不得发布违反法律法规的内容!
