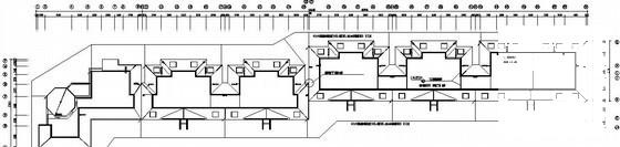
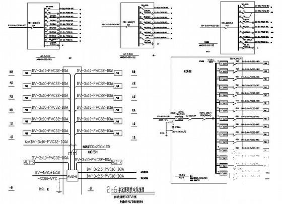
5层商住楼电气施工图纸(三级负荷)
- 发布时间:2021-12-04
- 评论次数:0
- 浏览次数:0
- 文件大小:1.72 MB
- 收藏次数:0
- 
								文件名称: 附件-995856899766506708977.rar 附件-995856899766506708977.rar
								楼电气施工图纸下载
							
						- 13层商住楼电气施工图纸(三级负荷)
- 5层商住楼电气CAD施工图纸(三级负荷)
- 高层商住楼电气全套图纸(三级负荷)
- 多层商住楼电气设计CAD图纸(三级负荷)
- 6层商住楼电气施工图纸(三级负荷,第三类防雷)
- 16层钢筋混凝土结构商住楼泛光照明工程电气图纸(三级负荷)
- 4层中学电气电气CAD施工图纸(三级负荷)
- 5层社会福利院电气CAD施工图纸(二级负荷,三级负荷)
- 两层运动场看台电气施工图纸(三级负荷)
- 两层小区锅炉房电气施工图纸(三级负荷)
- 两层带阁楼别墅电气施工图纸(三级负荷)
- 别墅区会所景观电气施工图纸(三级负荷)
- 5层住宅楼电气施工图纸(三级负荷)
- 5层别墅全套电气施工图纸(三级负荷)
- 188平米热交换站电气施工图纸(三级负荷)
- 6层住宅楼电气施工图纸(三级负荷)
- 锻造厂3层车间电气施工图纸(三级负荷)
- 2层连体别墅电气施工图纸(三级负荷)
- 11层教师公寓电气施工图纸(三级负荷)
- 4层综合楼电气施工图纸(三级负荷)
全部评论
						
							评论网友评论仅友表达个人看法,并不表明本站同意其观点,不得发布违反法律法规的内容!
						
						
 
	              	 
	              	 
	              	