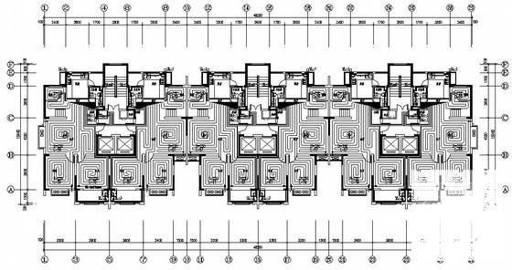
高层商住小区采暖给排水设计CAD图纸
- 发布时间:2022-11-01
- 评论次数:0
- 浏览次数:0
- 文件大小:1.1 MB
- 收藏次数:0
-
文件名称:
附件-995858600850957875976.rar
相关下载
- 18层高层商住小区采暖通风CAD施工图纸
- 小区高层商品房给排水及采暖CAD施工图纸(甲级设计)
- 高层小区商品房给排水及采暖CAD图纸
- 底商住采暖及给排水CAD施工图纸
- 超高层商住小区给排水CAD施工图纸
- 商住小区人防设计(给排水CAD平面图)
- 超高层商住小区给排水CAD施工大样图
- 高层商住楼室内采暖设计cad施工图纸和设计说明
- 25层商住小区给排水施工图纸
- 17层商住小区给排水CAD图纸
- 17层商住小区给排水CAD施工图纸
- 二类高层商住楼采暖及防排烟设计图纸
- 高层商住楼采暖排烟系统施工图纸设计
- 高层商住楼采暖及通风系统设计施工图纸
- 高层商住综合楼采暖通风CAD施工图纸(人防设计)
- 高层商住楼采暖空调设计施工大样图
- 高层商住楼采暖及通风排烟系统设计
- 商住小区地上11层住宅楼采暖施工图纸
- 15056平米小区25层商住楼采暖通风施工图纸
- 高档小区中高层住宅楼采暖系统设计施工图纸
全部评论
评论网友评论仅友表达个人看法,并不表明本站同意其观点,不得发布违反法律法规的内容!
