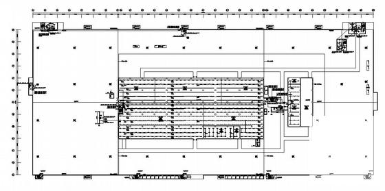
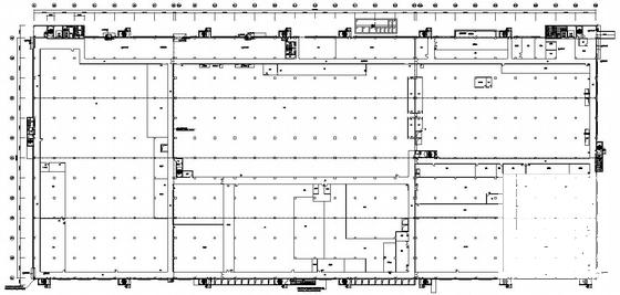
框架结构公司厂房生产车间电气CAD施工图纸(联动控制系统)
- 发布时间:2022-10-28
- 评论次数:0
- 浏览次数:0
- 文件大小:3.53 MB
- 收藏次数:0
-
文件名称:
附件-995856808865950678657.rar
相关下载
- 2层公司厂房生产车间电气CAD施工图纸(联动控制系统)
- 2层生产车间洁净厂房电气施工图纸
- 生产车间洁净厂房电气CAD施工图纸
- 浦东高科园区厂房生产车间电气CAD施工图纸(框架结构)
- 工程电气专项施工方案(联动控制系统)
- 糖业公司生产车间CAD施工图纸
- 框架结构糖业公司生产车间结构设计CAD施工图纸
- 生产车间电气CAD施工图纸
- 生产车间电气CAD施工图纸
- 生产车间电气施工图纸
- 公司4层行政办公楼电气设计CAD施工图纸(消防联动控制系统)
- 公司4层行政办公楼电气CAD施工图纸(消防联动控制系统)
- 10800平米服装公司生产车间空调图纸.dwg
- 海公司厂房空调控制系统竣工图纸
- 单层厂房生产车间建筑施工图纸2016
- 排架结构厂房生产车间施工方案
- 厂房生产车间电气施工图纸cad平面图
- 公司单层生产厂房建筑扩初图纸
- 学院弱电施工方案(消防联动控制系统)
- 32层综合楼电气消防CAD施工图纸(联动控制系统)
全部评论
评论网友评论仅友表达个人看法,并不表明本站同意其观点,不得发布违反法律法规的内容!
