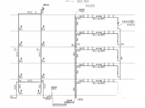
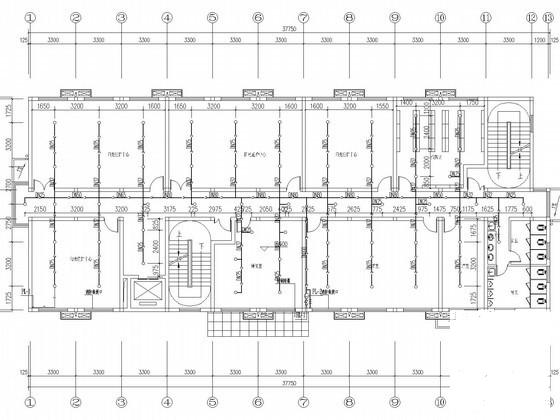
5层疗养院装修工程给排水CAD施工图纸(甲级设计院)
- 发布时间:2022-10-28
- 评论次数:0
- 浏览次数:0
- 文件大小:1.24 MB
- 收藏次数:0
- 
								文件名称: 附件-995859855775780080576.rar 附件-995859855775780080576.rar
								相关下载
							
						- 规划展览馆装修电气设计CAD施工图纸(甲级设计院)
- 多层规划展览馆装修电气设计图纸(甲级设计院)
- 知名酒店给排水消防CAD施工图纸(甲级设计院虹吸雨水)
- 32层居住建筑给排水消防CAD施工图纸(甲级设计院)
- 3层幼儿园给排水CAD施工图纸(甲级设计院)
- 17层商住楼给排水CAD施工图纸(甲级设计院)
- 28层国际社区给排水CAD施工图纸(甲级设计院)
- 多层办公楼给排水CAD施工图纸(甲级设计院)
- 28层国际社区给排水CAD施工图纸(甲级设计院)
- 5层安居工程电气CAD施工图纸(甲级设计院)
- 甲级设计院桥梁CAD施工图纸.dwg
- 3层甲级设计院甲级大剧院全套电气施工图纸65张
- 3层甲级设计院甲级大剧院电气图纸65张
- 最新小型商业电气CAD图纸(甲级设计院)
- 高层宿舍楼及食堂给排水消防CAD施工图纸(甲级设计院气体灭火)
- 4层大型社区小学建筑群给排水消防CAD施工图纸(甲级设计院)
- 3层农贸市场及地下车库给排水消防CAD施工图纸(甲级设计院)
- 20层百货大楼给排水CAD施工图纸(甲级设计院)
- 32层层办公楼给排水CAD施工图纸(甲级设计院)
- 9层办公楼给排水CAD施工图纸(冷凝水系统、甲级设计院)
全部评论
						
							评论网友评论仅友表达个人看法,并不表明本站同意其观点,不得发布违反法律法规的内容!
						
						
 
	              	 
	              	 
	              	