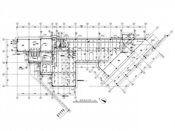
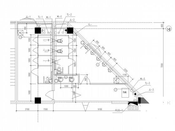
8层办公楼建筑给排水CAD施工图纸(气体灭火)
- 发布时间:2022-10-28
- 评论次数:0
- 浏览次数:0
- 文件大小:1.45 MB
- 收藏次数:0
- 
								文件名称: 附件-995860957699797085869.rar 附件-995860957699797085869.rar
								相关下载
							
						- 高层办公楼建筑给排水CAD施工大样图(气体灭火)
- 5层商业建筑给排水CAD施工图纸(气体灭火大空间智能灭火)
- 8层图纸书办公楼给排水CAD施工图纸(气体灭火)
- 8层图纸书办公楼给排水CAD施工图纸(气体灭火)
- 5层图纸书馆建筑给排水CAD施工图纸(气体灭火)
- 高层住宅小区建筑给排水平面施工图纸(气体灭火)
- 11层商住小区建筑给排水施工图纸(同层排水气体灭火)
- 客运站建筑给排水CAD施工图纸(气体灭火)
- 26层住宅楼建筑给排水图纸(气体灭火)(消防设计说明)
- 26层住宅建筑给排水CAD图纸(气体灭火)(室外消火栓系统)
- 气体灭火系统电气CAD图纸
- 气体自动灭火系统CAD图纸
- 15层办公楼给排水消防CAD施工图纸(冷凝水系统气体灭火系统)
- 11层办公楼给排水CAD施工图纸(气体灭火太阳能热水系统)
- 多层商业办公楼给排水消防CAD施工图纸(七氟丙烷气体灭火湿式自动喷水灭火)
- 21层商业广场给排水消防CAD施工图纸(气体灭火系统)
- 17层酒店给排水消防CAD施工图纸(虹吸雨水气体灭火)
- 41层科技大厦给排水CAD施工图纸(气体灭火系统)
- 7层医院综合楼给排水CAD施工图纸(气体灭火系统)
- 学院图书馆给排水CAD施工图纸(气体灭火系统)
全部评论
						
							评论网友评论仅友表达个人看法,并不表明本站同意其观点,不得发布违反法律法规的内容!
						
						
 
	              	 
	              	 
	              	 
	              	 
	              	