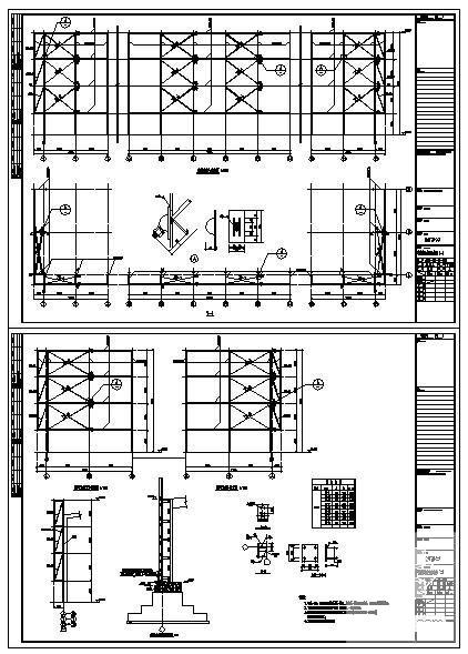
汽车零部件基地建设联合24米跨两层门式刚架厂房建筑结构施工图纸
- 发布时间:2021-11-29
- 评论次数:0
- 浏览次数:0
- 文件大小:3.42 MB
- 收藏次数:0
- 
								文件名称: 附件-995878795970795769595.rar 附件-995878795970795769595.rar
								厂房建筑结构施工图下载
							
						- 多层DVD厂房框架建筑结构施工图纸
- 机电公司厂房建筑结构施工图纸
- 3层厂房建筑结构施工图纸
- 3层厂房建筑结构CAD施工图纸
- 2层厂房建筑结构CAD施工图纸
- 网架厂房建筑结构CAD施工图纸
- 单层工业厂房建筑结构CAD施工图纸
- 重工厂房建筑结构CAD施工图纸
- 光学公司6层厂房建筑结构CAD图纸
- 24米跨排架厂房建筑结构CAD图纸
- 混凝土柱钢梁厂房建筑结构CAD图纸
- 21米跨厂房建筑结构CAD图纸
- 厂房双管桁架钢屋架建筑结构CAD图纸
- 多层钢结构厂房建筑结构CAD图纸
- 框架厂房建筑结构设备CAD图纸
- 水电站主厂房建筑结构CAD图纸
- 化纤厂房建筑结构CAD大样图
- 光学公司厂房建筑结构CAD图纸
- 水电站厂房建筑结构CAD图纸
- 单层排架厂房建筑结构CAD图纸
全部评论
						
							评论网友评论仅友表达个人看法,并不表明本站同意其观点,不得发布违反法律法规的内容!
						
						
 
	              	 
	              	 
	              	