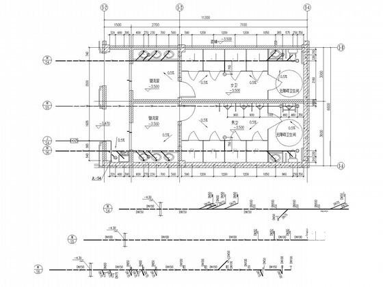
高层住宅楼及地下车库给排水消防CAD施工图纸
- 发布时间:2022-10-07
- 评论次数:0
- 浏览次数:0
- 文件大小:1.85 MB
- 收藏次数:0
-
文件名称:
附件-995859997869595678779.rar
相关下载
- 一类高层地下车库给排水及消防CAD施工图纸(住宅)
- 高层住宅楼及地下车库给排消防施工图纸
- 一类高层居住建筑及地下车库给排水消防CAD施工图纸
- 地下车库给排水消防CAD施工图纸
- 小区地下车库给排水及消防CAD施工图纸
- 高层酒店给排水及消防图纸
- 34层住宅楼及地下车库给排水成套CAD施工图纸
- 高层宾馆给排水及消防CAD施工图纸(地下室)
- 高层住宅给排水及消防CAD施工图纸(地下室人防)
- 地下人防车库工程给排水设计施工图纸_地下车库消防系统图
- 高层住宅楼给排水及消防CAD施工图纸
- 高层住宅楼给排水及消防CAD施工图纸(热水系统)
- 高层住宅楼给排水及消防设计CAD施工图纸(自动喷淋)
- 3层农贸市场及地下车库给排水消防CAD施工图纸(甲级设计院)
- 地下车库及附属配套用房给排水消防CAD施工图纸(自喷系统原理图)
- 地下车库及附属配套用房给排水消防CAD施工图纸(自喷系统原理图)
- 地下室给排水及消防平面CAD图纸
- 住宅楼及地下车库通风消防排烟系统设计CAD施工图纸(大院设计)
- 11层住宅楼及地下车库强弱电CAD施工图纸(消防联动)
- 高层住宅楼及地下车库通风消防排烟系统设计CAD施工图纸(大院设计)
全部评论
评论网友评论仅友表达个人看法,并不表明本站同意其观点,不得发布违反法律法规的内容!
