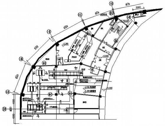
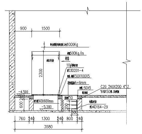
4层海洋世界表演馆电气CAD图纸
- 发布时间:2022-10-06
- 评论次数:0
- 浏览次数:0
- 文件大小:4.88 MB
- 收藏次数:0
- 
								文件名称: 附件-995856707765588758877.rar 附件-995856707765588758877.rar
								相关下载
							
						- 4层海洋世界表演馆电气CAD施工图纸(dwg)
- 海昌极地海洋世界配套工程设计任务书
- 海洋馆1层弱电平面CAD图纸
- 4层海洋馆空调平面施工图纸
- 6层海洋馆给排水及消防图纸(室内消火栓系统)
- 6层海洋馆给排水设计cad图纸自动喷淋系统展开图
- 表演台施工CAD图纸
- 6层海洋馆给排水及消防全套CAD施工大样图
- 小区表演台施工CAD图纸
- 世界著名建筑概念方案.
- 表演场花架CAD施工大样图
- 世界各地重要石材图纸谱.
- 世界金龙大厦结构设计
- 世界各地风荷载雪荷载
- 世界园艺博览会大温室主要电气设计方案.pdf
- 十三个世界著名建筑初设图纸
- 二十个世界著名建筑CAD初设图纸
- 表演台围墙施工详图纸平面图及立面图、展开图
- 表演台施工图纸平面图及立面图、剖面图
- 小区表演台施工图纸平面图及立面图、剖面图
全部评论
						
							评论网友评论仅友表达个人看法,并不表明本站同意其观点,不得发布违反法律法规的内容!
						
						
 
	              	 
	              	 
	              	