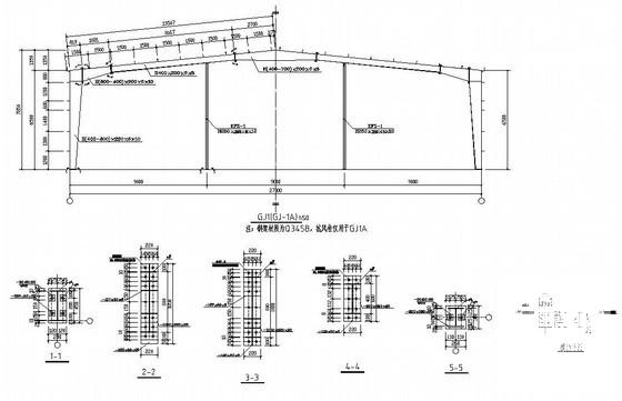
27m跨门式钢架厂房结构设计图纸(独立基础)
- 发布时间:2022-10-03
- 评论次数:0
- 浏览次数:0
- 文件大小:0.26 MB
- 收藏次数:0
- 
								文件名称: 附件-995878589079888676887.rar 附件-995878589079888676887.rar
								相关下载
							
						- 27m跨门式钢架厂房结构设计CAD施工图纸
- 单跨门式钢架厂房设计参考CAD图纸
- 36M双跨门式钢架单层厂房图纸
- 单跨门式钢架厂房设计参考CAD图纸
- 多跨门式钢架厂房结构CAD施工图纸
- 33米跨门式钢架厂房结构设计施工图纸
- 36米跨门式钢架厂房结构设计方案CAD图纸
- 48米跨门式钢架厂房结构设计方案CAD图纸
- 33米跨门式钢架厂房结构设计CAD施工图纸
- 标准门式钢架厂房的建筑结构CAD施工图纸(独立基础)
- 重型格构柱门式钢架厂房结构CAD施工图纸(独立基础)
- 四跨独立基础单层门式钢架结构厂房结构CAD施工图纸
- 无吊车门式钢架厂房结构CAD施工图纸(独立基础)
- 单层门式钢架厂房结构CAD施工图纸(独立基础)
- 18m跨单层门式钢架厂房结构CAD施工图纸(独立基础)
- 带吊车高低跨门式刚架厂房结构CAD施工图纸(独立基础)
- 24米跨门式刚架厂房结构CAD施工图纸(独立基础)
- 两连跨门式刚架厂房结构CAD施工图纸(独立基础)
- 8度区17米跨门式刚架厂房结构CAD施工图纸(独立基础)
- 2X30米跨门式刚架厂房结构CAD施工图纸(独立基础)
全部评论
						
							评论网友评论仅友表达个人看法,并不表明本站同意其观点,不得发布违反法律法规的内容!
						
						
 
	              	 
	              	 
	              	