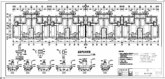
7层砖混结构住宅楼结构设计施工大样图
- 发布时间:2021-11-28
- 评论次数:0
- 浏览次数:0
- 文件大小:1.09 MB
- 收藏次数:0
-
文件名称:
附件-995879570867879886577.rar
砖混住宅楼结构施工下载
- 5层砖混住宅楼结构总说明
- 5层底框结构砖混结构住宅楼结构施工图纸
- 7层砖混结构住宅楼结构施工图纸(建筑施工CAD图纸)
- 6层砖混结构住宅楼结构CAD施工图纸(砖基础)(平面布置图)
- 7层砖混结构住宅楼结构设计施工详图
- 砖混结构住宅楼结构设计施工详图和说明
- 6层砌体结构砖混住宅楼结构设计施工图纸
- 多层砖混结构住宅楼结构设计施工详图平面图
- 3层砖混结构住宅楼结构设计施工图纸
- 5层砖混结构住宅楼结构设计施工图纸
- 3层砖混结构私人住宅楼结构设计施工图纸
- 6层现代砖混结构住宅楼结构设计施工图纸
- 3层农村砖混结构住宅楼结构设计施工图纸
- 两层砖混结构住宅楼结构设计施工图纸
- 乡镇3层砖混结构住宅楼结构设计施工图纸
- 6层砖混结构住宅楼部分结构设计施工图纸
- 5层砖混结构条形基础住宅楼结构设计施工详图
- 6层砖混结构住宅楼结构设计施工节点详图
- 6层砖混结构住宅楼结构设计施工图纸
- 固安3层砖混结构住宅楼结构设计施工图纸
全部评论
评论网友评论仅友表达个人看法,并不表明本站同意其观点,不得发布违反法律法规的内容!
