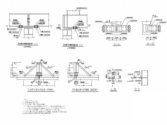
单层门刚结构冷弯型钢加工车间建筑结构CAD施工图纸(5T10T16T吊车)
- 发布时间:2022-09-18
- 评论次数:0
- 浏览次数:0
- 文件大小:3.06 MB
- 收藏次数:0
- 
								文件名称: 附件-995877779768799557578.rar 附件-995877779768799557578.rar
								相关下载
							
						- 单层门刚结构冷弯型钢加工车间建筑结构CAD施工图纸(5T10T16T吊车)
- 冷弯薄壁型钢结构抗侧刚度研究
- 卷边C冷弯薄壁型钢截面特性表
- C型冷弯薄壁型钢汽车销售服务店结构CAD施工图纸
- 单层门式刚架结构钢材加工车间结构CAD施工图纸
- 两层门刚结构造型车间建筑结构CAD施工图纸
- 单层门刚车间结构设计施工图纸
- 门式刚架加工车间建筑结构CAD施工图纸
- 20000平门刚结构电气厂房车间建筑结构全套图纸.dwg
- 单层门式刚架结构后加工车间结施2017
- 18米跨单层门式刚架美食城食品加工车间施工图纸
- C型冷弯薄壁型钢汽车销售服务店结构CAD施工图纸(6度抗震)
- 加工车间建筑结构全套施工图纸
- 加工厂锅炉车间吊车梁详图纸.
- 《钢结构设计规范》和《冷弯薄壁型钢结构技术规范》修订内容评述
- 单层高低跨门刚结构车间建筑结构CAD施工图纸(10T电动单梁40T桥式吊车)
- 单层高低跨门刚结构车间建筑结构CAD施工大样图(10T电动单梁40T桥式吊车)
- 单层冷弯薄壁钢结构结构厂房结构CAD施工图纸(建筑设计说明)
- 门式刚架单层封闭式钢结构红酒加工车间结构施工图纸(建筑图纸).
- 单层门式刚架结构钢材加工车间结构CAD施工图纸(建筑设计说明)
全部评论
						
							评论网友评论仅友表达个人看法,并不表明本站同意其观点,不得发布违反法律法规的内容!
						
						
 
	              	 
	              	 
	              	 
	              	 
	              	