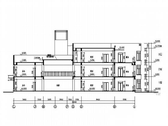
9层枫华府第九班幼儿园建筑施工CAD图纸
- 发布时间:2022-09-18
- 评论次数:0
- 浏览次数:0
- 文件大小:1.91 MB
- 收藏次数:0
- 
								文件名称: 附件-995880859570880070887.rar 附件-995880859570880070887.rar
								相关下载
							
						- 9班幼儿园施工CAD图纸
- 6班幼儿园建筑施工方案图纸(CAD效果图纸)
- 2层六班幼儿园建筑施工图纸
- 3层框架结构15班幼儿园建筑施工图纸2018
- 3层6班幼儿园建筑施工图纸2017
- 3层框架结构6班幼儿园建筑施工图纸2017
- 3层9班幼儿园建筑施工图纸2018
- 3层6班框架结构幼儿园建筑施工图纸
- 3层12班框架结构幼儿园建筑施工图纸2017
- 3层六班幼儿园建筑施工图纸_知名地产
- 3层6班框架结构幼儿园建筑施工图纸2018
- 3层11班幼儿园建筑施工图纸设计
- 21班3层新中式幼儿园建筑施工CAD图纸(节点详图)
- 社区3层九班幼儿园建筑施工CAD图纸
- 3层六班幼儿园建筑施工CAD图纸
- 军区六班3层幼儿园建筑施工CAD图纸
- 科学院3层九班幼儿园建筑施工CAD图纸
- 3层九班幼儿园建筑施工CAD图纸
- 3层12班幼儿园建筑CAD施工图纸
- 3层框架结构9班幼儿园建筑施工CAD图纸
全部评论
						
							评论网友评论仅友表达个人看法,并不表明本站同意其观点,不得发布违反法律法规的内容!
						
						
 
	              	 
	              	 
	              	 
	              	