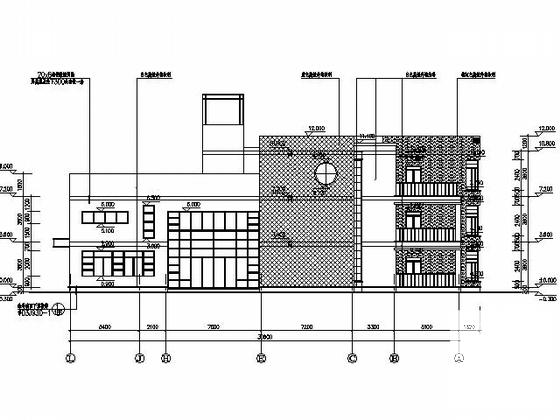
3层九班幼儿园建筑施工CAD图纸
- 发布时间:2022-09-20
- 评论次数:0
- 浏览次数:0
- 文件大小:0.97 MB
- 收藏次数:0
- 
								文件名称: 附件-995859996989587786708.rar 附件-995859996989587786708.rar
								相关下载
							
						- 社区3层九班幼儿园建筑施工CAD图纸
- 科学院3层九班幼儿园建筑施工CAD图纸
- 9层枫华府第九班幼儿园建筑施工CAD图纸
- 社区3层九班幼儿园建筑施工CAD图纸
- 4层九班幼儿园建筑扩初CAD图纸
- 3层九班幼儿园建筑方案设计初设图纸.dwg
- 3层九班幼儿园建筑扩初CAD初设图纸
- 现代L形九班幼儿园施工方案图纸平面图
- 砖混结构九班幼儿园建筑施工CAD图纸(卫生间大样)
- 九班3层欧式风格幼儿园建筑方案设计图纸(高17米)
- 3层九班现代型幼儿园建筑方案设计图纸(总)
- 3层九班欧式风格幼儿园建筑方案设计CAD初设图纸
- 3层九班3006平米幼儿园施工CAD图纸设计方案
- 3层九班幼儿园、六班托儿所建筑施工套图纸(方案、扩初阶段)
- 九班3层幼儿园建筑方案设计CAD图纸(实景照片、初设图纸)(平面图)
- 3层九班幼儿园建筑方案设计初设图纸平面图及剖面图,立面图
- 4层九班幼儿园建筑扩初初设图纸平面图及剖面图,立面图
- 3层九班屋顶带活动场地幼儿园建筑方案设计CAD图纸(总平面图)
- 幼儿园建筑施工图纸
- 实验幼儿园大门建筑施工图纸_幼儿园平面图_cad
全部评论
						
							评论网友评论仅友表达个人看法,并不表明本站同意其观点,不得发布违反法律法规的内容!
						
						
 
	              	 
	              	 
	              	 
	              	