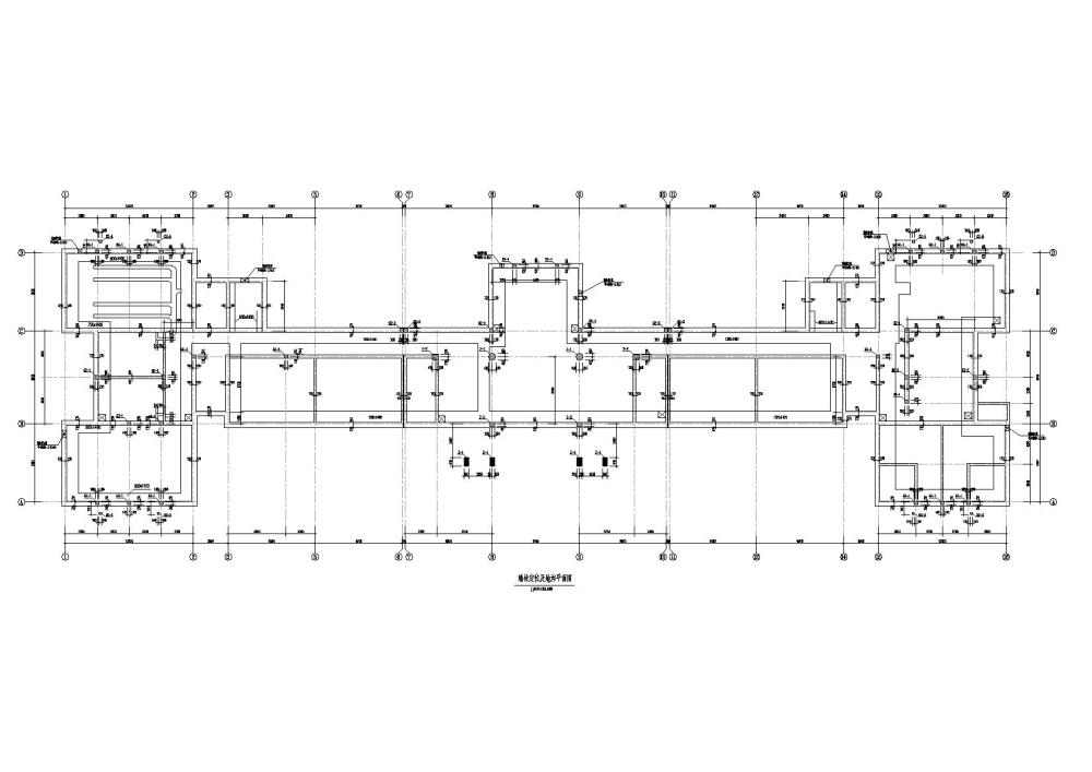
4层砌体办公楼结构CAD施工方案图纸
- 发布时间:2022-09-02
- 评论次数:0
- 浏览次数:0
- 文件大小:1.92 MB
- 收藏次数:0
-
文件名称:
附件-995806577876700968.zip
相关下载
- 4层砌体办公楼结构加层钢结构CAD施工方案图纸
- 单层砌体结构办公楼结构CAD施工方案图纸(预应力空心板)
- 2层砌体结构办公楼结构CAD施工方案图纸
- 砌体结构3层办公楼建筑施工方案(11张图纸)
- 10层砌体结构办公楼建筑设计方案设计CAD图纸
- 砌体结构3层办公楼建筑方案设计CAD图纸
- 3层砌体结构家具办公楼建筑方案设计CAD图纸
- 砌体结构环卫公厕结构CAD施工方案图纸
- 单层砌体结构平房结构CAD施工方案图纸
- 单层砌体结构库房结构CAD施工方案图纸
- 砌体住宅楼结构CAD施工方案图纸
- 6层砌体结构住宅施工方案图纸(CAD)
- 2层砌体木屋架办公楼结构CAD施工方案图纸(民用建筑设计)
- 上4层砌体结构办公楼抗震加固结构设计方案CAD图纸
- 混凝土砌体结构厂房工程施工方案
- 多层砌体结构办公楼修改施工建筑结构图纸
- 3层砌体结构办公楼结构设计施工图纸
- 地上6层砌体结构办公楼结构CAD施工图纸
- 单层砌体结构(局部框架)苗木基地办公楼结构CAD施工图纸
- 地上2层砌体结构办公楼结构CAD施工图纸
全部评论
评论网友评论仅友表达个人看法,并不表明本站同意其观点,不得发布违反法律法规的内容!
