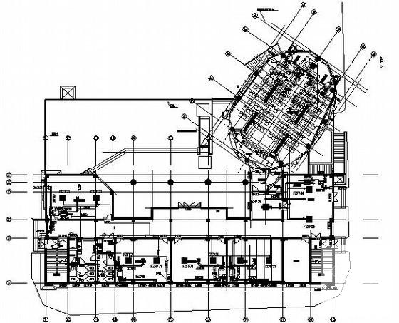
生态科技楼空调通风设计施工图系统图
- 发布时间:2021-11-25
- 评论次数:0
- 浏览次数:0
- 文件大小:3.69 MB
- 收藏次数:0
- 
								文件名称: 附件-995858766769705770587.rar 附件-995858766769705770587.rar
								生态科技施工系统图下载
							
						- 生态科技园区景观规划设计方案
- 生态科技产业园丁类多层厂房给排水施工图纸cad平面图
- 5层生态科技楼空调通风设计施工图纸
- 5层生态科技楼给排水CAD施工图纸
- 5层生态科技楼给排水CAD施工图纸
- 滨江生态走廊现代科技商业休闲展示区景观设计方案.pdf
- 科技产业中心暖通施工图纸平面图及排烟系统图
- 生态科技园道路工程交通标志标线施工大样图cad平面布置图
- 新中式风高端生态住宅景观电气施工大样图平面图及系统图
- 17层科技产业中心电气照明平面图及配电系统图
- 汽车科技产业园暖通施工图纸通风系统平面图
- 长江大学石油科技中心暖通系统工程CAD施工大样图
- 9层科技园科技研发大楼消防系统图纸
- 生态公园钢吊桥施工大样图(原创).
- 科技办公楼空调设计图纸,平面图,系统图,机房大样图
- 七层科技学校直饮水成套cad图平面图,系统图
- 科技发展创业中心给排水设计CAD图纸(自动喷淋系统图)
- 浅议“风水”的生态思想和生态实践(人与自然)
- 构建城市生态与自然生态之间的桥梁
- 多层科技学校直饮水设计图纸_直饮水系统图和平面图
全部评论
						
							评论网友评论仅友表达个人看法,并不表明本站同意其观点,不得发布违反法律法规的内容!
						
						
 
	              	 
	              	 
	              	