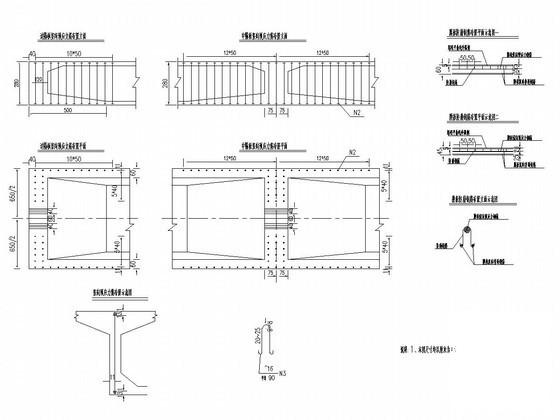
箱梁竖向预应力布置图纸立面示意图,平面图
- 发布时间:2021-12-22
- 评论次数:0
- 浏览次数:0
- 文件大小:0.18 MB
- 收藏次数:0
-
文件名称:
附件-996007895907595989.rar
箱梁竖向预应力图下载
- 硕士预应力混凝土连续箱梁桥计算
- 预应力箱梁挂篮悬浇施工方案
- CAD桥预应力箱梁吊装施工方案
- 现浇预应力混凝土连续箱梁施工方案
- 30米预应力混凝土箱梁设计CAD图纸
- 预应力混凝土箱梁大桥设计CAD图纸(完整)
- 预应力现浇箱梁桥梁全套cad图纸
- 26-28.6m异性连续梁4x30m,cad设计图纸,箱梁构造图和箱梁预应力图
- 2x16预应力混凝土箱梁桥设计全套图纸构造图
- 跨径40m预应力混凝土连续箱梁桥上部构造通用图
- (203120)米预应力连续箱梁桥CAD施工大样图设计.dwg
- 变截面预应力砼连续箱梁挂篮设计套图(30页图纸).dwg
- 30m预应力现浇箱梁梁体CAD施工图纸设计.dwg
- 预应力混凝土现浇连续箱梁桥施工图纸设计构造图及桥型布置图
- 预应力混凝土连续箱梁桥设计图纸平面布置图及桥台构造图
- 预应力混凝土连续箱梁桥施工图纸设计构造图及钢筋布置图
- 跨径30米预应力混凝土连续箱梁设计图纸钢筋构造图,流程图
- 宽24米预应力混凝土变截面连续箱梁跨河桥施工图构造图
- 5×30m部分预应力混凝土组合箱梁大桥cad图纸,配筋图和构造图
- 应急通道预应力混凝土现浇箱梁桥施工图纸cad构造图及布置图
全部评论
评论网友评论仅友表达个人看法,并不表明本站同意其观点,不得发布违反法律法规的内容!
