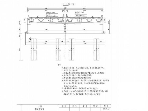
1×20m装配式预应力混凝土箱梁桥施工图构造图及圆管涵平立面
- 发布时间:2021-12-21
- 评论次数:0
- 浏览次数:0
- 文件大小:4.24 MB
- 收藏次数:0
-
文件名称:
附件-995788985079767655.rar
装配式预应力箱梁桥施工图下载
- 装配式预应力混凝土T梁桥_预应力桥_cad
- 1×20m装配式预应力混凝土箱梁桥CAD施工图纸(涵洞).dwg
- 硕士预应力混凝土连续箱梁桥计算
- CAD桥预应力箱梁吊装施工方案
- 装配式预应力混凝土T形连续梁桥施工图纸cad
- 预应力钢筋混凝土连续箱梁桥施工图纸63张
- 预应力变截面连续箱梁桥CAD施工图纸.dwg
- 2×m现浇预应力连续箱梁桥施工图纸92张.dwg
- 预应力连续箱梁桥CAD施工图纸65张.dwg
- 预应力混凝土连续箱梁桥CAD施工图纸65张(花瓶墩).dwg
- 25m装配式预应力混凝土箱梁通用图纸58张
- 25m装配式预应力混凝土箱梁通用图纸(知名大院).dwg
- 30m装配式预应力混凝土箱梁通用CAD图纸31张
- 装配式部分预应力混凝土连续箱梁桥上部构造CAD图纸
- 装配式预应力混凝土箱形连续梁桥上部构造通用图纸.dwg
- 装配式预应力混凝土连续T梁桥通用图纸设计
- 装配式预应力混凝土T梁桥支座构造CAD图纸
- 装配式预应力混凝土T梁桥(先简支后结构连续)cad
- 预应力混凝土现浇连续箱梁桥施工图纸设计构造图及桥型布置图
- 2x16预应力混凝土箱梁桥设计全套图纸构造图
全部评论
评论网友评论仅友表达个人看法,并不表明本站同意其观点,不得发布违反法律法规的内容!
