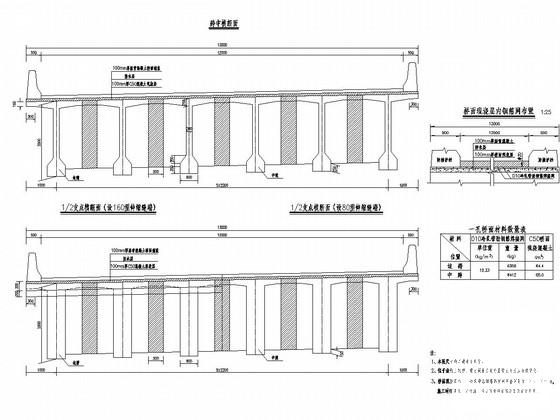
装配式预应力混凝土连续T梁桥通用图纸设计
- 发布时间:2022-02-20
- 评论次数:0
- 浏览次数:0
- 文件大小:1.28 MB
- 收藏次数:0
- 
								文件名称: 附件-996008655567775779.rar 附件-996008655567775779.rar
								相关下载
							
						- 装配式预应力混凝土T形连续梁桥施工图纸cad
- 装配式预应力混凝土T梁桥(先简支后结构连续)cad
- 装配式预应力混凝土T梁桥_预应力桥_cad
- 10m宽预应力混凝土连续梁桥T梁施工图纸设计
- 直线桥35米预应力连续T梁通用图纸30张.dwg
- 预应力混凝土连续T梁桥中横隔梁钢筋布置CAD图纸
- 预应力混凝土连续T梁桥端横隔梁钢筋布置CAD图纸
- 装配式预应力混凝土T梁桥_先简支后结构连续_公路桥cad
- T形连续梁上部构造CAD图纸通用图纸(预应力混凝土桥)
- 装配式预应力混凝土T梁桥上部构造通用图纸
- 装配式预应力混凝土T梁桥上部构造通用图纸
- 预应力混凝土T形连续梁桥成套CAD设计图纸.dwg
- 装配式预应力混凝土T梁桥(先简支后结构连续)上部构造通用图纸(标准横断面图)
- 装配式预应力混凝土T梁桥(先简支后结构连续)上部构造通用CAD图纸(标准横断面图)
- 装配式预应力混凝土箱形连续梁桥上部构造通用图纸.dwg
- 装配式预应力混凝土T梁桥支座构造CAD图纸
- 装配式预应力混凝土连续梁桥T梁预应力钢束定位钢筋布置CAD图纸(L=25m)
- 20米T梁桥上部构造通用CAD图纸(预应力混凝土桥)
- 预应力混凝土连续T梁桥中跨翼板钢筋布置CAD图纸
- 三跨预应力混凝土连续刚构桥T梁支座构造CAD图纸
全部评论
						
							评论网友评论仅友表达个人看法,并不表明本站同意其观点,不得发布违反法律法规的内容!
						
						
