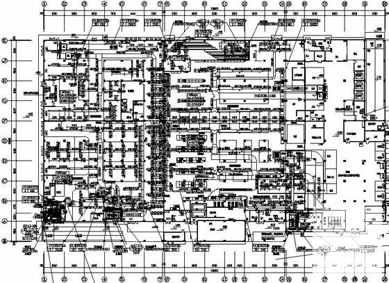
3层3090平米大型商场空调通风全套设计施工图纸
- 发布时间:2021-11-24
- 评论次数:0
- 浏览次数:0
- 文件大小:3.71 MB
- 收藏次数:0
-
文件名称:
附件-995858770955889807808.rar
大型商场空调设计下载
- 13层大型商场空调通风设计全套CAD施工图纸
- 18层大型商场空调通风全套CAD施工图纸
- 大型商场空调通风设计图纸.dwg
- 大型商场空调通风施工图纸
- 大型商场空调通风平面CAD图纸
- 大型商场综合建筑空调及通风排烟系统设计施工图纸
- 5层大型商场空调通风设计CAD施工图纸
- 大型商场通风平面CAD图纸
- 3层大型商场空调通风施工平面CAD图纸
- 厂房全套空调通风设计施工图纸
- 3层大型商场暖通设计CAD施工图纸(散热器采暖空调通风)
- 3层大型商场暖通设计CAD施工图纸(散热器采暖空调通风)
- 大型商场中央空调施工图纸
- 超市通风空调全套标准施工大样图
- 18层大型商场空调通风CAD施工图纸()(压缩式冷水机组)
- 大型商场空调图纸(13页图纸).dwg
- 大型商场中央空调(12页CAD图纸)
- 38200平米25层大厦采暖、通风、空调设计全套施工图纸
- 34426平米2层地下商场空调通风全套设计施工图纸
- 小型水电站空调通风系统全套设计施工图纸
全部评论
评论网友评论仅友表达个人看法,并不表明本站同意其观点,不得发布违反法律法规的内容!
