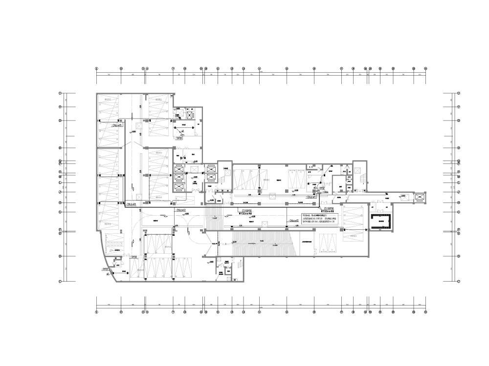
21层骨科综合楼电气施工大样图(2016)
- 发布时间:2021-12-11
- 评论次数:0
- 浏览次数:0
- 文件大小:13.12 MB
- 收藏次数:0
- 
								文件名称: 附件-996099556087587898.zip 附件-996099556087587898.zip
								综合楼电气施工下载
							
						- 22层框剪结构骨科综合楼结施CAD施工大样图2015
- 高层框剪医院骨科综合楼建筑施工大样图cad平面图
- 医院骨科大楼电气系统图纸
- 21层人民医院骨科综合楼给排水CAD施工图纸
- 21层人民医院骨科综合楼暖通CAD施工图纸
- 2016传媒影视办公综合楼电气CAD施工图纸(防雷、负荷计算书)
- 骨科医院给排水设计CAD图纸
- 骨科医院给排水设计CAD施工大样图.dwg
- 4层展览中心电气施工大样图(2016)
- 知名地产_高层住宅楼电气施工大样图(2016)
- 20层一万平住宅楼电气施工大样图(2016)
- 骨科医院园林景观CAD施工图纸.dwg
- 综合楼大会议室专项电气精装CAD施工图纸(2016年最新)
- 4层美术馆电气施工图纸(2016)
- 太古里日式餐厅电气施工图纸2016
- 酒店电气装饰施工图纸(2016年最新)
- 大型冷库电气CAD施工图纸(2016年最新)
- 食堂、操场电气施工CAD图纸(2016最新设计)
- 医科大学总医院骨科医院
- 立柱桩及格构柱结构大样图纸2016
全部评论
						
							评论网友评论仅友表达个人看法,并不表明本站同意其观点,不得发布违反法律法规的内容!
						
						
 
	              	 
	              	 
	              	 
	              	 
	              	