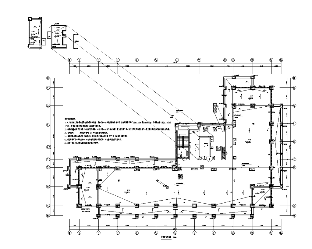
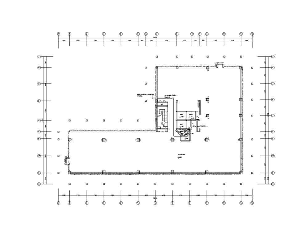
12层办公楼强弱电电气施工图纸
- 发布时间:2021-12-11
- 评论次数:0
- 浏览次数:0
- 文件大小:18.12 MB
- 收藏次数:0
-
文件名称:
附件-996099559596598687.rar
办公楼电气施工下载
- 3层办公楼强弱电气设计施工图纸
- 办公楼强弱电电气CAD施工图纸
- 办公楼强弱电电气CAD施工图纸
- 4层办公楼强弱电电气设计CAD施工图纸.dwg
- 知名综合办公楼强弱电电气施工图纸188张.dwg
- 办公楼强弱电设计
- 办公楼强弱电CAD施工图纸
- 7层办公楼强弱电系统竣工图纸(电气设计说明)
- 办公楼强弱电平面CAD图纸
- 4层办公楼强弱电CAD图纸
- 医院电气强弱电施工图纸
- 办公大楼强弱电气施工CAD图纸
- 5层钢筋混凝土结构办公楼强弱电系统电气施工图纸
- 27层综合办公楼强弱电系统CAD施工图纸(电气设计说明)
- 16334层平米行政办公楼强弱电CAD施工图纸(电气设计说明)
- 26层办公楼强弱电CAD施工图纸(电气设计说明)
- 4层机关办公楼强弱电CAD施工图纸(电气设计说明)
- 3层办公楼强弱电气CAD施工图纸(防雷接地系统)()
- 5层典型办公楼强弱电系统电气CAD施工图纸(TN-C-S)
- 14层甲级院丨综合办公楼电气强弱电CAD施工图纸
全部评论
评论网友评论仅友表达个人看法,并不表明本站同意其观点,不得发布违反法律法规的内容!
