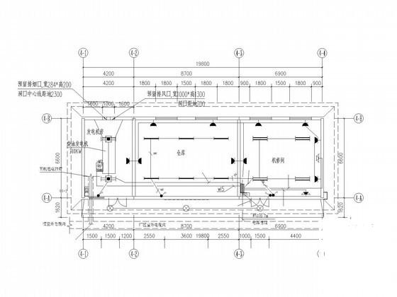
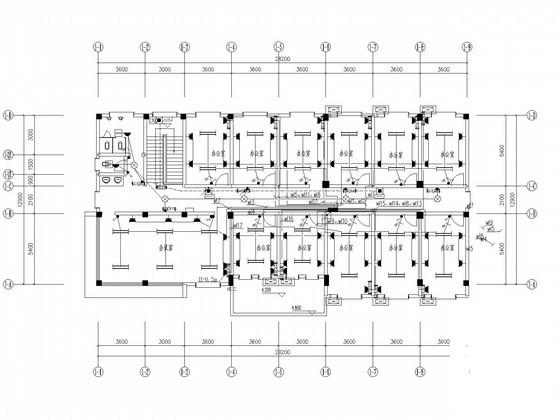
2层水厂办公楼及厂房强弱电施工图纸
- 发布时间:2021-12-11
- 评论次数:0
- 浏览次数:0
- 文件大小:0.94 MB
- 收藏次数:0
-
文件名称:
附件-995856557507585588606.rar
办公楼弱电图纸下载
- 2层水厂办公楼及厂房强弱电CAD施工图纸(电气设计说明)
- 31层商务办公楼强弱电施工图纸(消防报警及联动)
- 污水厂平面及高程CAD施工图纸
- 厂房办公楼方案及效果CAD图纸
- 污水厂综合办公楼给排水图纸
- 办公楼强弱电设计
- 办公楼强弱电CAD施工图纸
- 水厂及配套工程电气cad平面图
- 4层厂房办公楼及配套厂房建筑施工CAD图纸(三层框架结构)
- 办公楼强弱电平面CAD图纸
- 4层办公楼强弱电CAD图纸
- 5900平米地上3层办公楼及厂房空调施工图纸
- 汽车配件厂房及办公楼空调平面施工图纸
- 3层简洁工业厂房及办公楼建筑施工CAD图纸(2016最新)
- 3层厂房办公楼给排水及消防CAD施工图纸
- 研发中心厂房及办公楼钢结构CAD图纸(施工总说明)
- 单层厂房及办公楼结构CAD施工图纸
- 3层简洁工业厂房及办公楼建筑施工CAD图纸(2016最新)
- 二层框架结构水厂厂房结构施工图cad计算书
- 现代风格厂房办公楼建施施工图及效果图
全部评论
评论网友评论仅友表达个人看法,并不表明本站同意其观点,不得发布违反法律法规的内容!
