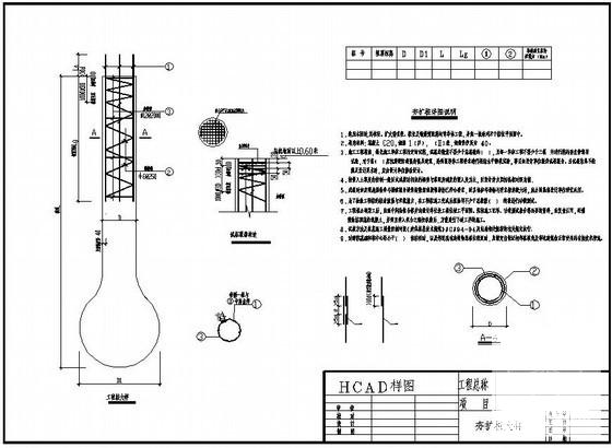
夯扩桩节点详图纸cad
- 发布时间:2024-01-02
- 评论次数:0
- 浏览次数:0
- 文件大小:0.03 MB
- 收藏次数:0
-
文件名称:
附件-996057050799575509.rar
相关下载
- 双管夯扩桩说明
- 夯扩桩节点构造详图纸cad
- 夯扩桩大样结构CAD图纸
- 复合载体夯扩桩大样CAD图纸
- 沉管灌注夯扩桩构造详图纸cad
- 复合载体夯扩桩图纸样节点构造详图纸cad
- 夯扩桩节点构造详细设计CAD图纸(平面布置图)
- 夯扩桩设计说明及节点CAD详图纸
- 夯扩桩节点构造详图纸cad平面布置图
- 夯扩桩设计说明及节点构造详图纸cad
- 夯扩桩基详图纸及说明
- 工程夯扩桩基设计CAD图纸
- 复合载体夯扩桩基础节点构造CAD详图纸及设计说明
- 钻(冲)孔桩大样及桩表节点构造详施工图
- 锤击沉管夯压扩底灌注桩基设计说明
- 预应力混凝土管桩说明及大样节点构造详施工图纸
- 灌注桩桩身设计CAD详施工图纸
- 弧形6层框架住宅楼结构CAD施工方案图纸(夯式灌注桩)
- 结构节点构造详施工图纸
- 路基边坡桩板式抗滑挡土墙支护节点CAD详大样图(计算书)
全部评论
评论网友评论仅友表达个人看法,并不表明本站同意其观点,不得发布违反法律法规的内容!
