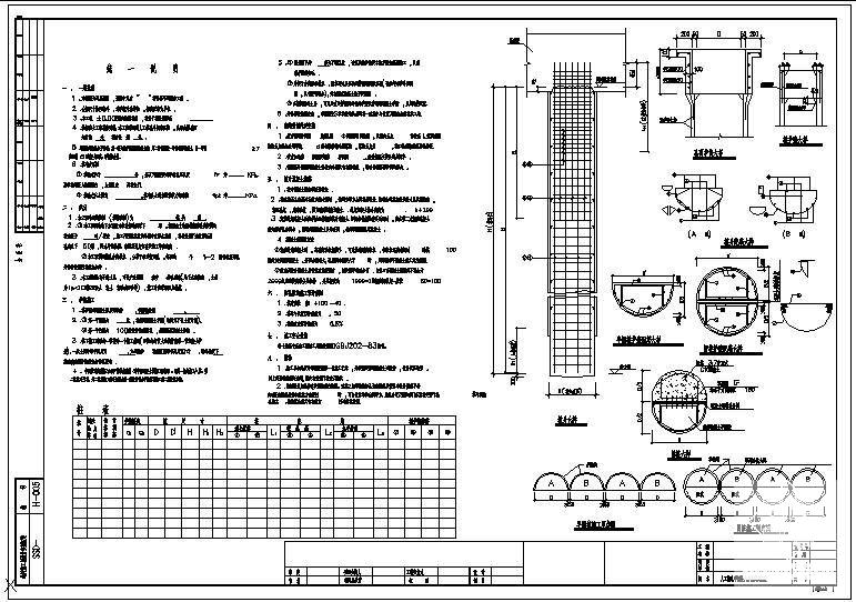
预应力混凝土管桩说明及大样节点构造详施工图纸
- 发布时间:2022-02-20
- 评论次数:0
- 浏览次数:0
- 文件大小:0.22 MB
- 收藏次数:0
-
文件名称:
附件-995797870599997605.rar
预应力混凝土大样图下载
- 三跨预应力混凝土连续刚构桥普通钢筋布置大样图
- 预应力混凝土简支板桥CAD施工大样图
- 混凝土预应力构造节点大样图集合集CAD
- 预应力混凝土管桩说明2018
- 浅谈预应力混凝土结构施工.pdf
- 预应力混凝土管尺寸表(word)
- 三跨预应力混凝土连续刚构桥竖向预应力钢筋布置图纸
- 三跨预应力混凝土连续刚构桥横向预应力钢筋布置CAD图纸
- 预应力混凝土连续板预应力刚束布置节点CAD详图纸设计
- 装配式预应力混凝土T梁桥_预应力桥_cad
- 预应力混凝土管桩节点构造详图纸
- 预应力混凝土结构说明及详图纸
- 硕士预应力混凝土连续箱梁桥计算
- 关于预应力高强混凝土管桩桩基说明
- 预应力混凝土管桩通用总说明和大样
- 预应力混凝土管桩试桩说明
- 斜拉桥挂索施工方案(预应力混凝土)
- 现浇预应力混凝土连续箱梁施工方案
- 预应力钢-混凝土组合梁的设计与施工
- 桥梁公用CAD图纸构造图纸(预应力混凝土桥)
全部评论
评论网友评论仅友表达个人看法,并不表明本站同意其观点,不得发布违反法律法规的内容!
