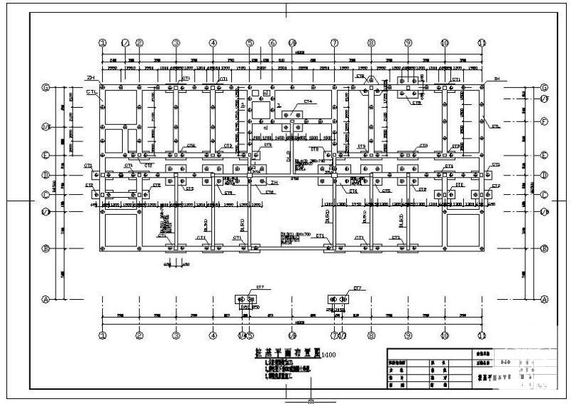
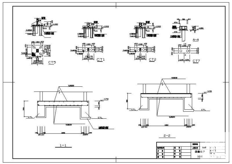
夯扩桩节点构造详图纸cad平面布置图
- 发布时间:2024-01-02
- 评论次数:0
- 浏览次数:0
- 文件大小:0.1 MB
- 收藏次数:0
- 
								文件名称: 附件-995797877807588088.rar 附件-995797877807588088.rar
								相关下载
							
						- 夯扩桩节点构造详细设计CAD图纸(平面布置图)
- 夯扩桩节点构造详图纸cad
- 夯扩桩节点详图纸cad
- 双管夯扩桩说明
- 沉管灌注夯扩桩构造详图纸cad
- 夯扩桩大样结构CAD图纸
- 复合载体夯扩桩图纸样节点构造详图纸cad
- 夯扩桩设计说明及节点构造详图纸cad
- 复合载体夯扩桩大样CAD图纸
- 夯扩桩设计说明及节点CAD详图纸
- 复合载体夯扩桩基础节点构造CAD详图纸及设计说明
- 夯扩桩基详图纸及说明
- 工程夯扩桩基设计CAD图纸
- 钻(冲)孔桩大样及桩表节点构造详施工图
- 预应力混凝土管桩说明及大样节点构造详施工图纸
- 车库人工挖孔扩底桩基及挡土墙节点构造详图纸cad平面布置图
- 结构节点构造详施工图纸
- 扩底桩基础cad图和桩位平面布置图,承台平面布置图
- 3层框架别墅结构CAD施工图纸(人工挖(扩)孔桩、双拼)(平面布置图)
- 弧形6层框架住宅楼结构CAD施工图纸(夯式灌注桩)(平面布置图)
全部评论
						
							评论网友评论仅友表达个人看法,并不表明本站同意其观点,不得发布违反法律法规的内容!
						
						
 
	              	 
	              	