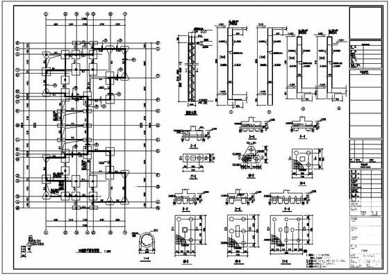
住宅地梁及基础节点构造详图纸cad
- 发布时间:2024-01-02
- 评论次数:0
- 浏览次数:0
- 文件大小:0.16 MB
- 收藏次数:0
- 
								文件名称: 附件-996055077759690588.rar 附件-996055077759690588.rar
								相关下载
							
						- 基础梁防水构造详cad图纸
- 钢-混凝土组合梁大样及梁表节点构造CAD详施工图纸
- 柱下混凝土独立基础大样及基础表节点构造详施工图
- 梁配筋大样及平面表示法说明及梁表节点构造详施工图纸
- 无粘结预应力梁及板大样节点构造详施工图纸
- 有粘结预应力梁及板大样节点构造详施工图纸
- 桩基础节点构造CAD详大样图
- 筏板基础梁构造示意节点构造图纸
- 基础梁表示及构造通用CAD图纸
- 拱型屋顶网梁楼盖结构设计说明及节点构造CAD详施工图纸
- 拱型屋顶网梁楼盖结构设计说明及节点构造CAD详施工图纸.dwg
- 坡屋面平法构造及补充大样节点构造详施工图纸cad
- 结构节点构造详施工图纸
- 基础梁大样节点构造设计详图纸
- 新地梁与原基础连接节点构造详图纸
- 基础反梁模板示意节点构造详图纸(二)
- 基础反梁支模节点构造CAD详图纸
- 钢-混凝土组合转换梁大样节点构造CAD详施工图纸
- 梁板补强(加固)大样(贴钢板)节点构造CAD详施工图纸
- 无粘结、有粘结预应力梁板节点构造CAD详大样图
全部评论
						
							评论网友评论仅友表达个人看法,并不表明本站同意其观点,不得发布违反法律法规的内容!
						
						
