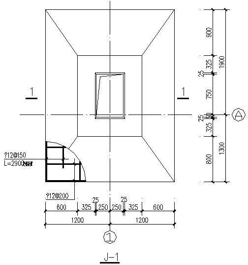
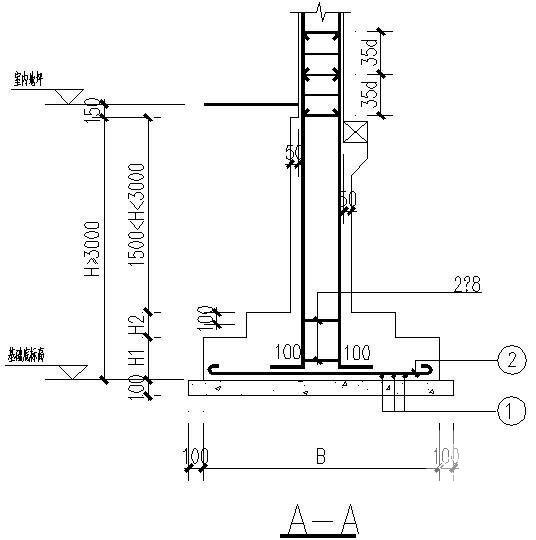
常用基础大样及剖面节点构造详图纸
- 发布时间:2022-02-20
- 评论次数:0
- 浏览次数:0
- 文件大小:0.44 MB
- 收藏次数:0
-
文件名称:
附件-995797877096770750.rar
相关下载
- 常用基础大样及剖面节点构造详细设计CAD图纸
- 柱下混凝土独立基础大样及基础表节点构造详施工图
- 桩基础节点构造CAD详大样图
- 公园常用CAD节点详大样图
- 常用大样节点构造设计详图纸
- 常用住宅阳台剖面节点构造详细设计CAD图纸(女儿墙大样)
- 基坑锚杆支护剖面及节点CAD详大样图
- 坡屋面平法构造及补充大样节点构造详施工图纸cad
- 砌体结构构造大样节点构造详施工图纸
- 砌体结构刚性基础大样节点构造详施工图纸
- 常用结构设计阳台栏杆构造CAD详大样图.dwg
- 50个天窗节点构造CAD详大样图——建筑CAD详大样图
- 住宅建筑结构常用节点详大样图(32个)
- 29个地面常用做法节点CAD详大样图
- 无粘结预应力梁及板大样节点构造详施工图纸
- 有粘结预应力梁及板大样节点构造详施工图纸
- 柱配筋大样节点构造详施工图纸及平面表示法说明
- 异形柱大样及柱表节点构造详施工图纸
- 楼梯大样及梯板表节点构造详施工图纸
- 预应力混凝土管桩说明及大样节点构造详施工图纸
全部评论
评论网友评论仅友表达个人看法,并不表明本站同意其观点,不得发布违反法律法规的内容!
