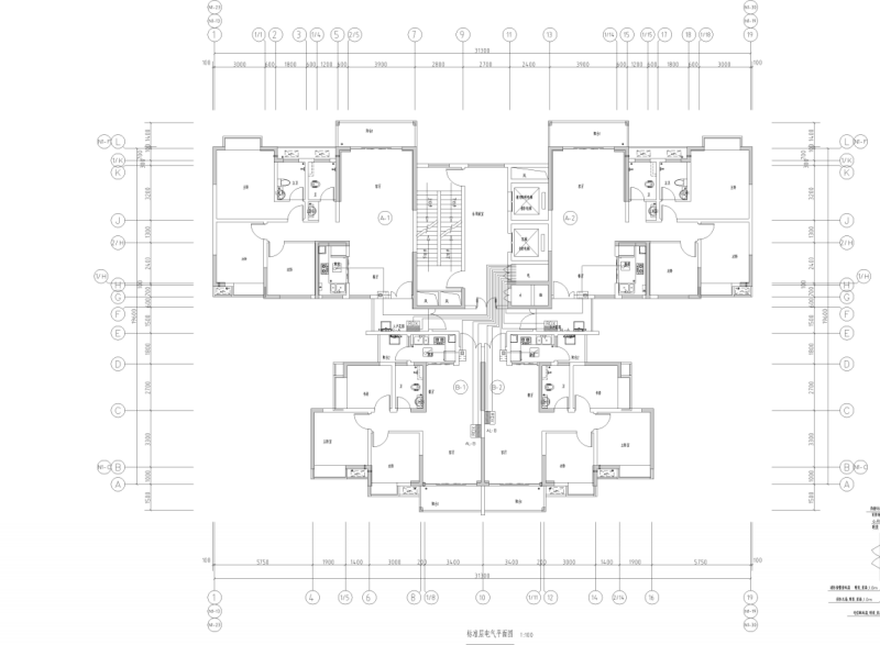
25层2#、3#住宅电施cad平面图
- 发布时间:2024-01-02
- 评论次数:0
- 浏览次数:0
- 文件大小:5.26 MB
- 收藏次数:0
- 
								文件名称: 附件-996579097579788879.dwg 附件-996579097579788879.dwg
								相关下载
							
						- 20层公租房2#、3#结构
- 云城2#、3#地块商业街建筑方案设计文本
- 27层18、19#住宅电施平面图
- 27层21、22#住宅电施平面图及系统图
- 27层1#住宅电施cad平面图
- 25层4、5、6#住宅电施cad平面图
- 25层7、8、9#住宅电施cad平面图
- 25层10#11#住宅电施cad平面图
- 人民银行3#住宅电气CAD施工图纸
- 人民银行2#住宅电气CAD施工图纸
- 3#住院楼暖通cad平面图
- 生产孵化2#厂房暖通平面图
- 23层广电大数据园区综合体1、3#楼电施施工图纸平面图及系统图
- 小学电施cad平面图
- 27层20#住宅电平面图
- 住宅电梯大堂空调设计CAD平面图
- 带住区修建性详细规划和效果图_平面图_cad
- 科幻谷3#馆暖通施工图纸空调平面图及通风系统
- 3#馆电气施工图纸平面图及系统图
- 11层3#住院楼电气cad平面图及系统图
全部评论
						
							评论网友评论仅友表达个人看法,并不表明本站同意其观点,不得发布违反法律法规的内容!
						
						
 
	              	 
	              	 
	              	 
	              	