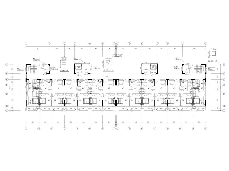
18层3#人才公寓楼暖通施工图纸cad平面图
- 发布时间:2024-01-02
- 评论次数:0
- 浏览次数:0
- 文件大小:3.63 MB
- 收藏次数:0
- 
								文件名称: 附件-996860897676085069.dwg 附件-996860897676085069.dwg
								相关下载
							
						- 3#住院楼暖通cad平面图
- 高层公寓楼3#楼给排水施工图纸cad平面图
- 人才公寓地下室暖通施工大样图cad平面图
- 科幻谷3#馆暖通施工图纸空调平面图及通风系统
- 一类高层住宅3#楼暖通施工图纸cad平面图
- 新建教学楼3#教职工宿舍暖通施工图纸cad平面图
- 杨凌示范区人才公寓18层住宅楼暖通CAD施工图纸
- 高层公寓楼暖通全套施工图纸
- 公寓楼暖通CAD施工图纸(8张)
- 26层11029平米小区3#楼采暖通风施工图纸
- 11层中学教室公寓楼暖通.dwg
- 3#馆电气施工图纸平面图及系统图
- 安置房3#塔楼给排水施工图纸cad平面图
- 4层先进制造产业园3#生产厂房暖通施工图纸cad平面图
- soho公寓楼户型平面图纸.dwg
- 微山17层广场3#住宅楼采暖通风CAD施工图纸.dwg
- 28375平米23层公寓楼暖通全套施工图纸
- 5层公寓楼采暖通风设计CAD施工图纸
- 公寓楼采暖通风系统CAD施工图纸(风冷热泵)
- 13层酒店式公寓楼采暖通风设计CAD施工图纸
全部评论
						
							评论网友评论仅友表达个人看法,并不表明本站同意其观点,不得发布违反法律法规的内容!
						
						
 
	              	 
	              	