admin
|
退出
|
登录
|
注册
|
0
积分
|
赚取积分
|
VIP领取积分
|
帮助中心
|
首页
【知石网】是一个专业资料分享学习平台,本站提供大量施工技术文档和设计下载。
首页
施工图纸
施工方案
施工组织
施工交底
合同表格
建筑结构
节点详图
毕业设计
平面图纸
景观设计
电气知识
环保知识
您当前位置:
首页
»
其他文档
»
其他资料
»
3层艺术楼电施cad平面图
3层艺术楼电施cad平面图
资料简介
赚取积分
搜索更多资源
建筑类别:教育
建筑高度类型:多层建筑
建筑设计结构形式:钢筋混凝土结构
建筑设计面积:4855平方米
建筑地上层数:3层
图纸设计深度:施工图
图纸设计格式:CAD2000
设计年代:近代
负荷等级:一级,二级,三级
防雷等级:第三类
火灾保护分级:一级
接地方式:TN-S
项目所在地:贵州
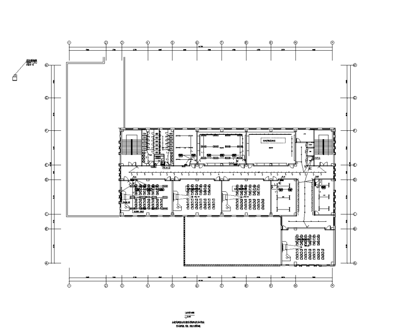
该附件为贵州某艺术教学楼
电气施工图
,设计范围包括:
1.10/0.4KV配电系统;2.照明、应急照明系统;3.火灾自动报警系统;4.空调配电系统;5.防雷接地系统;
应急照明平面图.png
火灾自动报警平面图.png
屋顶防雷平面图.png
照明平面图.png
电气抗震设计大样.png
火灾自动报警系统图.png
以下是附件的其中一部分截图,共6张,您也可以
搜索
更多您想要的资源
应急照明平面图
火灾自动报警平面图
屋顶防雷平面图
照明平面图
电气抗震设计大样
火灾自动报警系统图
以上是部分截图,请下载附件后查看完整高清内容
发布时间:2024-01-02
评论次数:0
浏览次数:0
文件大小:5.31 MB
收藏次数:0
文件名称:
附件-996565695960780558.dwg
下载信息
加入收藏
赚取积分
立即下载
对不起,系统繁忙,请稍后再试,或联系管理员
对不起,您的积分余额不足,请
充值积分
恭喜购买成功!请
下载文件
相关下载
小学电施cad平面图
学校艺术楼建施
3层行政楼-电施cad平面图
中区电施平面图及系统图
足球场看台-电施cad平面图
3层二食堂_电施cad平面图
3层一食堂_电施cad平面图
3层会堂电施cad平面图
商住楼电施CAD图纸
3层楼装修电施
中学教师单身楼电施
居住楼电施CAD图纸
工厂车间电施
光明住宅-电施
急救中心电施
小区电施CAD图纸
幼儿园电施
26层6#楼-电施cad平面图及系统图
26层5#楼-电施cad平面图及系统图
23层4#楼-电施cad平面图及系统图
全部评论
评论
网友评论仅友表达个人看法,并不表明本站同意其观点,不得发布违反法律法规的内容!
下载排行
6层学生宿舍1#楼_电施cad平面图
5层初中部教学楼-电施cad平面图
5层高中部教学楼-电施cad平面图
5层综合楼-电施cad平面图
五星酒店电施-动力用房电施施工图纸
矿锅炉房给排水水施、电施
小型商业综合楼电施图纸23张
多层商铺楼电施CAD施工图纸
多层住宅楼电施CAD施工图纸
12.5层商住楼电施CAD图纸
下载推荐
小学教学楼电施CAD图纸
9层办公综合楼电施CAD图纸
办公楼电施CAD施工图纸
机加工车间电施CAD图纸
职工宿舍电施CAD图纸
电力调度中心大楼电施
1号厂房电施照明平面图及配电箱系统图
4层体育馆电施火灾自动报警平面图及系统图
2层大型建设项目-B区沿街商业电施cad平面图
五星酒店10KV电源进线变压器电施-动力用房电施图
网站首页
|
信息产业部备案/许可证编号:苏ICP备2021052619号-1
苏公网安备:32041102001778号
本站所有内容均由网友自主分享,仅供学习和参考,如有侵权内容或者违法行为,请及时联系站长删除。