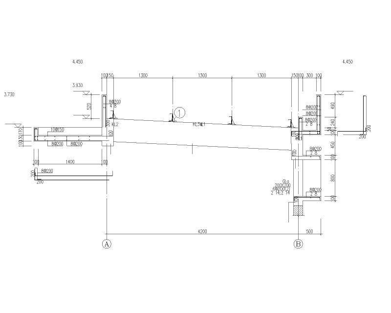
机场危险品库工程-结构全套施工图纸cad平面布置图
- 发布时间:2024-01-02
- 评论次数:0
- 浏览次数:0
- 文件大小:2.87 MB
- 收藏次数:0
- 
								文件名称: 附件-996876765955877896.zip 附件-996876765955877896.zip
								相关下载
							
						- 机场危险品库工程-电气全套施工图纸cad平面图及系统图
- 机场货运库工程-结构全套施工图纸cad平面布置图
- 机场危险品库工程-建筑全套施工图纸cad平面图及剖面图,立面图
- 机场熏蒸房工程-结构全套施工图纸cad平面布置图
- 机场货运区工程危险品仓库给排水施工图纸cad平面图及系统图
- 药厂危险品库电气设计图纸
- 二层机场货运库工程暖通施工图纸cad平面图
- 机场货运库工程给排水施工图纸cad平面图
- 2层危险品库结构设计CAD施工图纸
- 机场货运库暖通施工图纸cad
- 两层框架结构危险品库结构设计CAD施工图纸.dwg
- 机场消防救援工消防站-结构全套图纸cad平面布置图
- 项目地库全套结构施工图纸cad平面布置图
- 机场路延线与大道立交桥工程方案设计(总平面布置图)
- 抄纸车间成浆塔结构大样图
- 地下上工程检修库桩基节点构造详图纸cad布置图
- 旅游环线水泥混凝土道路路面改造工程全套施工图布置图
- 机场航站工程结构CAD详图纸.dwg
- 保障房项目小区结构CAD施工图纸(配套公建、地库)(平面布置图)
- 新建危险品仓库室外消防CAD平面图
全部评论
						
							评论网友评论仅友表达个人看法,并不表明本站同意其观点,不得发布违反法律法规的内容!
						
						
 
	              	 
	              	