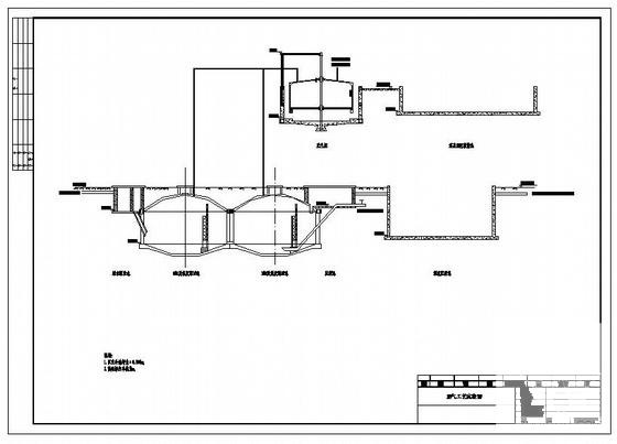
沼气工程全套施工图纸
- 发布时间:2021-12-05
- 评论次数:0
- 浏览次数:0
- 文件大小:0.55 MB
- 收藏次数:0
- 
								文件名称: 附件-995860988975676589855.rar 附件-995860988975676589855.rar
								施工图全套图纸下载
							
						- 种猪繁育合作社大中型沼气工程全套施工图纸
- 沼气工程施工套图纸.dwg
- 特大型沼气工程全套CAD施工图纸
- 污水处理沼气工程全套图纸.
- 抄纸车间成浆塔结构大样图
- 中西医地下室纸基础图纸
- 沼气井结构CAD施工图纸
- 养殖场废水及大型沼气工程设计施工图纸
- 特大型沼气工程CAD施工图纸,(喷灌系统)(平面布置图)
- 养殖场废水及大型沼气工程设计CAD施工方案图纸
- 养殖场鸭粪便沼气工程施工方案(现浇钢筋混凝土)
- 沼气池工艺设备安装图纸
- 沼气发电气体收集控制系统CAD图纸
- 小区城镇沼气净化池全套大样图
- MBR工程工艺设计全套施工图纸
- 损纸碎浆机池结构详大样图
- 中西医人防地下室纸基础CAD图纸
- 道路工程石渣路基填筑工程全套施工图(24页图纸).
- 道路工程石渣路基填筑工程全套施工图纸(24张).
- 20m3沼气化粪池工艺及结构施工图纸
全部评论
						
							评论网友评论仅友表达个人看法,并不表明本站同意其观点,不得发布违反法律法规的内容!
						
						
 
	              	 
	              	