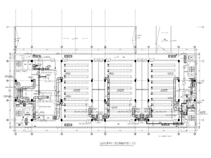
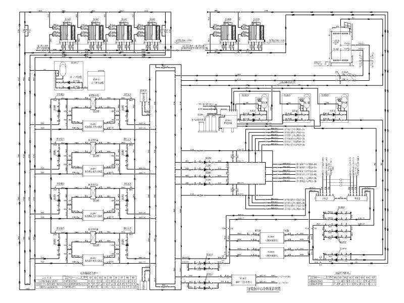
4层云计算数据中心暖通施工图纸
- 发布时间:2021-12-09
- 评论次数:0
- 浏览次数:0
- 文件大小:14.01 MB
- 收藏次数:0
- 
								文件名称: 附件-996077989050779670.zip 附件-996077989050779670.zip
								云计算数据中心下载
							
						- 6层云计算中心通风及空调系统设计施工图纸
- 大型数据中心暖通冷源设计
- 云计算基地E3数据中心机房楼施工图纸
- 北控曙光亦庄云计算数据中心项目系统CAD图纸
- 20039平米4层数据中心空调通风设计施工图纸
- 4层数据中心改造项目强电系统CAD施工图纸
- 4层数据中心电气系统CAD施工图纸
- 4层数据中心空调通风设计CAD施工图纸
- 数据中心4层框架办公楼结构施工图纸2013.
- 殡仪馆暖通施工图纸(计算书)
- 3层云海花园幼儿园砖混结构CAD施工图纸
- 数据中心给排水施工图纸
- 数据中心机房电气CAD施工图纸
- 574731平米4层大型数据中心空调通风及防排烟系统设计施工图纸
- 4层大型数据中心空调通风及防排烟系统设计CAD施工图纸(大院设计)
- 4层两江数据中心机房楼给排水施工大样图
- 4层住宅会所暖通设计施工图纸
- 4层中学暖通CAD施工图纸
- 4层宾馆暖通CAD施工图纸
- 4S店暖通CAD施工图纸.dwg
全部评论
						
							评论网友评论仅友表达个人看法,并不表明本站同意其观点,不得发布违反法律法规的内容!
						
						
 
	              	 
	              	 
	              	 
	              	 
	              	