小型门卫室强电施工图纸

  • 建筑类别:办公
  • 建筑高度类型:单层建筑
  • 建筑设计结构形式:混合结构
  • 建筑设计面积:24.84平方米
  • 建筑地上层数:1层
  • 图纸设计深度:施工图
  • 图纸设计格式:CAD2000
  • 设计年代:近代
  • 负荷等级:三级
  • 防雷等级:第三类
  • 接地方式:TN-S
  • 项目所在地:重庆
  • 强电设计:供配电系统,建筑物防雷,接地安全,其它

该附件为重庆检疫中心门卫室电气施工图。

概况:
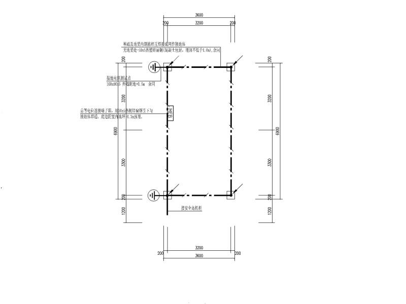
该项目为重庆铁路口岸检疫处理中心-3#门卫。本建筑为地上单层建筑,建筑面积为24.84m,建筑高度3m,结构类型为钢筋混凝土框架结构。本建筑使用功能门卫,抗震烈度等级为6度。设计内容包括供配电系统、弱电平面布置、防雷接地系统等。

部分图纸摘录:
配电平面图

防雷平面图


接地平面图

弱电平面图
配电箱系统图



电气施工图形符号

以下是附件的其中一部分截图,共6张,您也可以 搜索 更多您想要的资源
  • 门卫室施工图纸 - 1
    门卫室施工图纸 - 1
  • 门卫室施工图纸 - 2
    门卫室施工图纸 - 2
  • 门卫室施工图纸 - 3
    门卫室施工图纸 - 3
  • 门卫室施工图纸 - 4
    门卫室施工图纸 - 4
  • 门卫室施工图纸 - 5
    门卫室施工图纸 - 5
  • 门卫室施工图纸 - 6
    门卫室施工图纸 - 6
以上是部分截图,请下载附件后查看完整高清内容
网站首页  | 
本站所有内容均由网友自主分享,仅供学习和参考,如有侵权内容或者违法行为,请及时联系站长删除。