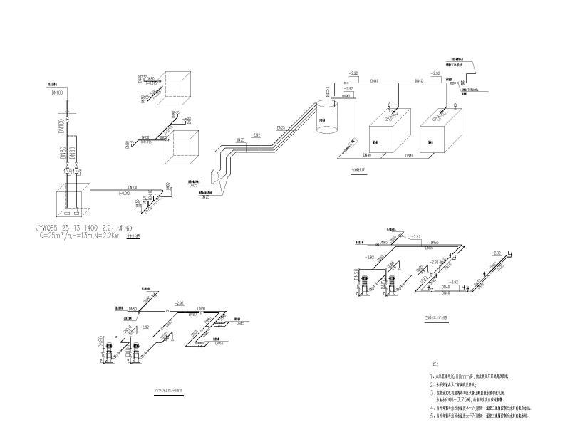
地下汽车库人防给排水喷淋系统设计施工大样图
- 发布时间:2021-12-08
- 评论次数:0
- 浏览次数:0
- 文件大小:14.36 MB
- 收藏次数:0
- 
								文件名称: 附件-996995869509987879.zip 附件-996995869509987879.zip
								地下车库给排水设计下载
							
						- 地下车库给排水图纸
- 地下车库给排水CAD图纸
- 大型地下车库给排水给排水CAD图纸
- 大型地下车库给排水给排水CAD图纸
- 地下车库给排水图纸设计说明
- 地下车库给排水设计图纸
- 商业广场地下车库给排水设计
- 地下上车库给排水设计图纸.dwg
- 地下车库给排水设计CAD图纸.dwg
- 地下人防车库工程给排水设计施工图纸_地下车库消防系统图
- 大厦地下车库给排水施工图纸
- 地下车库给排水消防CAD施工图纸
- 彭州小区地下车库给排水CAD图纸
- 小区地下车库给排水CAD施工图纸
- 地下车库给排水CAD施工方案图纸
- 地下2层车库给排水CAD施工图纸
- 大厦地下车库给排水施工图纸.dwg
- 小区地下车库给排水图纸.dwg
- 地下车库结构设计
- 地下车库电气设计.dwg
全部评论
						
							评论网友评论仅友表达个人看法,并不表明本站同意其观点,不得发布违反法律法规的内容!
						
						
 
	              	 
	              	 
	              	 
	              	 
	              	