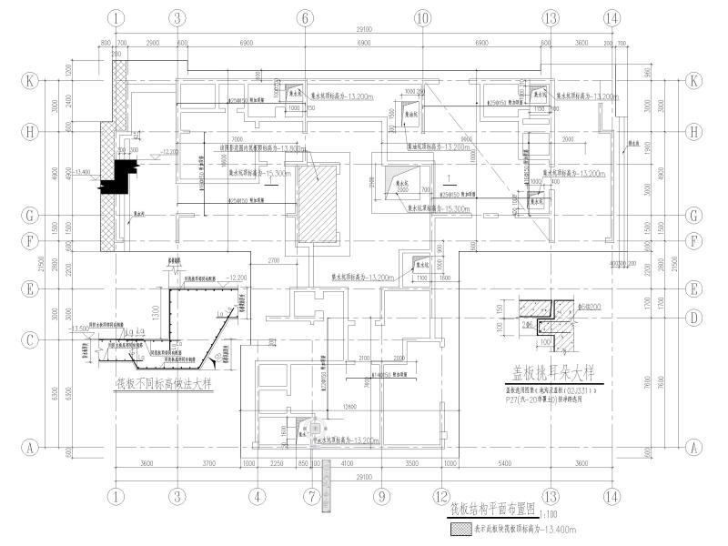
18层剪力墙结构住宅楼结施2017(建)
- 发布时间:2021-12-08
- 评论次数:0
- 浏览次数:0
- 文件大小:5.48 MB
- 收藏次数:0
- 
								文件名称: 附件-996977095099978786.zip 附件-996977095099978786.zip
								剪力墙结构住宅楼下载
							
						- 7层砖混、底部框架结构住宅楼结施(建施)
- 单层门式刚架结构药品仓库结施2017
- 单层门式刚架结构物流仓库结施2017
- 银河太阳城三期高层住宅楼建施结施CAD施工图纸
- 4层别墅建施结施CAD图纸(楼梯配筋图)
- 5层框架综合楼毕业设计方案(建施、结施图纸)
- 无铰双曲拱桥CAD施工方案图纸(建施结施).dwg
- 2层别墅建施结施CAD施工图纸
- 联体型别墅成套施工图纸(包括全套建施、结施、电施和水施).dwg
- 5层装配整体框架结构食堂结施施工图纸2017
- 5层框架结构抗氧剂装置间结施施工图纸2017
- 24米跨排架结构丙类工业库结施施工图纸2017
- 混合层次钢结构锻造厂房结施施工图纸2017
- 3层门式刚架结构车桥制造厂房结施施工图纸2017
- 单层门式刚架结构废料间结施施工图纸2017
- 单层门式刚架结构后加工车间结施2017
- 3层门式刚架结构发动机制造厂房结施2017
- 27层剪力墙结构住宅楼结施施工图纸2019
- 9层剪力墙结构住宅楼结施
- 框架结构住宅楼结施CAD图纸
全部评论
						
							评论网友评论仅友表达个人看法,并不表明本站同意其观点,不得发布违反法律法规的内容!
						
						
 
	              	 
	              	 
	              	 
	              	 
	              	