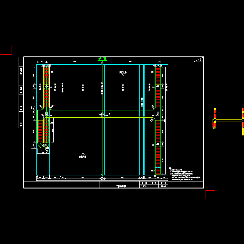
主跨29.45m钢箱梁天桥cad施工图纸和墩柱钢筋构造图
- 发布时间:2023-12-28
- 评论次数:0
- 浏览次数:0
- 文件大小:4.65 MB
- 收藏次数:0
-
文件名称:
附件-995799870985677788.rar
相关下载
- 主跨29.45m钢箱梁天桥CAD施工图纸22张(知名大院)
- 47m钢箱梁人行天桥cad施工图设计,主梁构造图和桥墩桩基钢筋构造图
- 拱型塔钢箱梁斜拉桥天桥设计cad图纸,肋板式桥台和柱墩结构
- 预应力混凝土连续箱梁主墩墩柱钢筋布置节点CAD详图纸设计
- 市政道路路口天桥施工方案图纸CAD(钢箱梁独柱式墩).dwg
- 预应力混凝土连续箱梁主墩桩基钢筋布置节点CAD详图纸设计
- 主跨90米连续钢箱梁桥上部结构施工图纸和计算书
- 市政道路路口天桥施工方案大样图47张CAD(钢箱梁独柱式墩)
- 边跨箱梁普通钢筋节点构造详图
- 中跨箱梁普通钢筋节点构造详图
- 双塔斜拉桥检查车施工图(钢箱梁主梁,43页图纸).
- 2×22.25m连续钢箱梁人行天桥CAD施工图纸54张(独柱墩嵌岩桩甲级院).dwg
- 27.5m单跨斜腹板等截面钢箱梁天桥施工图纸cad构造图
- 28.3m跨径钢箱梁过街天桥施工图纸cad平面布置图及构造图
- 钢箱梁结构人行天桥施工CAD大样图成套(玻璃栏杆)
- 连续钢构箱梁特大桥过渡墩盖梁钢筋节点CAD详图纸设计
- 双柱墩盖梁钢筋节点构造CAD详图纸
- 122012m钢筋混凝土现浇连续箱梁桥CAD施工图纸(独柱墩).dwg
- 三跨预应力混凝土连续刚构桥主墩桩基钢筋布置CAD图纸
- 45m跨径简支钢箱梁人行天桥整体设计图纸(计算书).dwg
全部评论
评论网友评论仅友表达个人看法,并不表明本站同意其观点,不得发布违反法律法规的内容!
