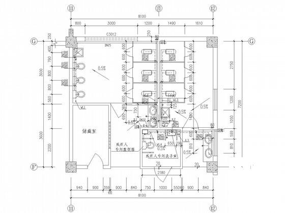
14000平米6层医院门诊楼给排水施工大样图
- 发布时间:2021-11-28
- 评论次数:0
- 浏览次数:0
- 文件大小:1.52 MB
- 收藏次数:0
-
文件名称:
附件-995860558686058877068.rar
医院门诊给排水下载
- 6层医院门诊楼给排水CAD施工大样图
- 6层医院门诊楼给排水CAD施工大样图
- 医院门诊楼给排水CAD图纸
- 医院门诊楼工程给排水和消防设计成套CAD大样图
- 4层医院门诊楼给排水设计图纸(大样图纸).dwg
- 13层中医院门诊大楼给排水CAD施工大样图
- 医院门诊空调、给排水、消防设计CAD图纸
- 4层知名医院门诊楼给排水消防CAD施工大样图
- 7层县医院门诊住院综合楼给排水消防CAD施工大样图(水电)
- 【城市地上9层中医院门诊楼给排水施工图纸
- 4层知名医院门诊楼给排水消防CAD施工图纸
- 4层中医院门诊楼给排水消防CAD施工图纸
- 医院11层门诊楼给排水CAD施工图纸
- 4层三甲医院门诊医技楼给排水CAD施工图纸
- 中医院门诊楼给排水CAD施工图纸
- 医院综合门诊楼给排水CAD图纸(施工方案图设计)
- 医院11层门诊楼给排水CAD施工方案图纸
- 多层中医院门诊楼给排水消防CAD施工图纸
- 4层三甲医院门诊医技楼给排水CAD施工图纸
- 4层医院门诊楼给排水CAD施工图纸
全部评论
评论网友评论仅友表达个人看法,并不表明本站同意其观点,不得发布违反法律法规的内容!
