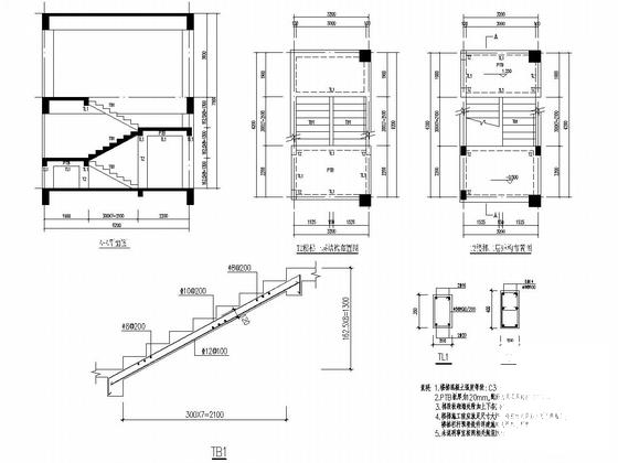
地上3层框架结构商业楼结构设计施工图纸
- 发布时间:2021-12-05
- 评论次数:0
- 浏览次数:0
- 文件大小:0.92 MB
- 收藏次数:0
-
文件名称:
附件-995887986579055887799.zip
商业楼设计下载
- 地上2层框架结构商业楼结构设计施工图纸
- 地上4层框架结构商业楼结构设计施工图纸
- 两栋地上2层框架结构商业楼结构设计施工图纸
- 两栋地上2层现浇框架结构商业楼结构设计施工图纸
- 地上3层与2层现浇框架结构商业楼结构设计施工图纸
- 地上3层框架结构商业楼地上部分结构CAD施工图纸.dwg
- 地上6层框架结构商业楼结构设计施工大样图
- 地上4层框架结构商业楼结构施工图纸
- 地上2层框架结构商业楼结构施工图纸
- 地上3层框架结构商业楼结构施工图纸
- 地上4层框架结构商业楼结构CAD施工图纸
- 地上6层框架结构商业楼结构CAD施工图纸
- 地上4层框架结构商业楼结构CAD施工图纸
- 地上4层框架结构商业楼结构CAD施工大样图
- 地上3层框架结构商业楼结构CAD施工大样图
- 地上3层框架结构商业楼结构CAD施工大样图
- 地上两层商业楼框架结构CAD施工图纸(基础平面图)
- 单层框架结构商业楼结构设计施工图纸
- 3层框架结构商业楼结构设计施工图纸
- 3层现浇框架结构商业楼结构设计施工图纸
全部评论
评论网友评论仅友表达个人看法,并不表明本站同意其观点,不得发布违反法律法规的内容!
