地上6层框架结构办公楼结构设计施工图纸

  • 建筑类别:办公
  • 建筑高度类型:多层建筑
  • 建筑地上层数:6层
  • 图纸设计深度:施工图
  • 民用建筑设计使用年限:50年
  • 建筑设计结构形式:钢筋混凝土结构
  • 钢筋混凝土结构:框架
  • 基础形式 :独立基础
  • 结构安全等级:二级
  • 地基基础设计等级:乙级
  • 参考图纸:17张

附件详情

本子项为某普通的办公楼,地上六层,建筑设计结构形式为框架结构,基础为柱下独立基础。
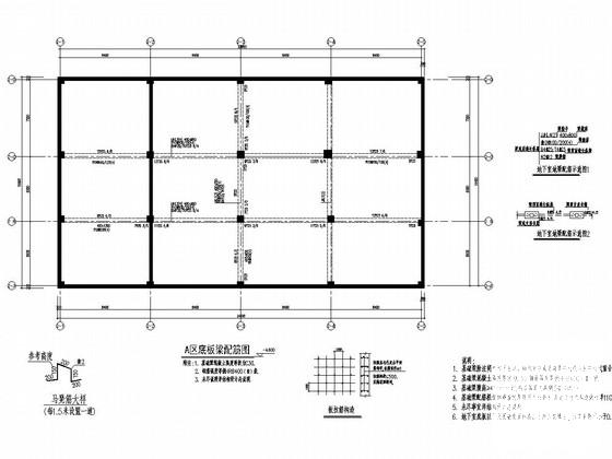
该资料包含:基础平面布置图、结构 平面布置图 、板配筋图、柱网图、梁配筋图、楼梯结构图、 节点详图 等共17张图纸。

A区底板梁配筋图

A区柱网图

A区二层结构平面布置及板配筋图

以下是附件的其中一部分截图,共4张,您也可以 搜索 更多您想要的资源
  • 办公楼结构设计图纸 - 1
    办公楼结构设计图纸 - 1
  • 办公楼结构设计图纸 - 2
    办公楼结构设计图纸 - 2
  • 办公楼结构设计图纸 - 3
    办公楼结构设计图纸 - 3
  • 办公楼结构设计图纸 - 4
    办公楼结构设计图纸 - 4
以上是部分截图,请下载附件后查看完整高清内容
网站首页  | 
本站所有内容均由网友自主分享,仅供学习和参考,如有侵权内容或者违法行为,请及时联系站长删除。